Запчасти Komatsu D39PX-21 КАБИНА ROPS (БЕЗ РАДИО) (ДЛЯ США)(№-) КАБИНА ОПЕРАТОРА И СИСТЕМА УПРАВЛЕНИЯ

Схема запчастей Komatsu D39PX-21 - КАБИНА ROPS (БЕЗ РАДИО) (ДЛЯ США)(№-) КАБИНА ОПЕРАТОРА И СИСТЕМА УПРАВЛЕНИЯ
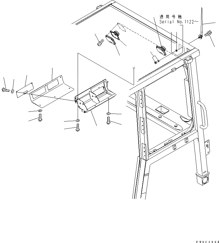
1
2
2
3
3
4
5
5
6
6
7
8
8
8A
9
10
10
11
12
FIT
1:1
100%

Артикул

Название

Примечание

Количество

|$$1

THESE ASSEMBLIES CONSIST OF ALL PARTS SHOWN IN FIGS.K0210-01A1 TO K0210-09A0.

-1шт.

1

11Y-979-1541

BRACKET

SN: 1001-@

1шт.

2

01245-00616

SCREW

SN: 1001-@

4шт.

3

01643-70623

WASHER

SN: 1001-@

4шт.

4

11Y-979-1551

COVER

SN: 1001-@

1шт.

5

01245-00616

SCREW

SN: 1001-@

4шт.

6

01643-70623

WASHER

SN: 1001-@

4шт.

7

11Y-979-2880

COVER

SN: 1001-@

1шт.

8

198-Z11-4610

RUBBER ANTENNA

SN: 1122-@

1шт.

8

362-56-42261

RUBBER ANTENNA

SN: 1001-1121

1шт.

8A

01643-30623

WASHER

SN: 1122-@

1шт.

9

01023-20414

SCREW

SN: 1001-@

2шт.

10

11Y-979-1950

SPEAKER

SN: 1001-@

2шт.

11

418-967-2150

COVER,SPEAKER

SN: 1001-@

2шт.

12

01023-10525

SCREW

SN: 1001-1201

8шт.

Выбрано товаров: 15