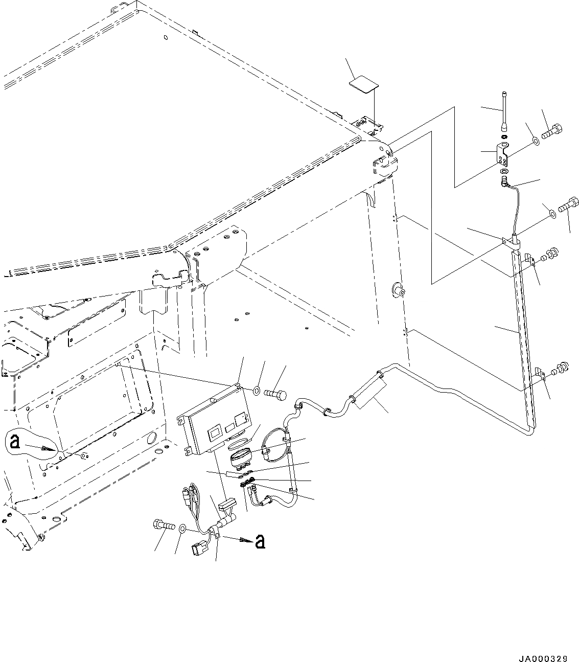
Запчасти Komatsu D39PX-22 СИСТЕМА ROPS, KOMTRAX TERMINAL И АНТЕННА (№-) СИСТЕМА ROPS, С МАСТЕР КЛЮЧ, KOMTRAX

Схема запчастей Komatsu D39PX-22 - СИСТЕМА ROPS, KOMTRAX TERMINAL И АНТЕННА (№-) СИСТЕМА ROPS, С МАСТЕР КЛЮЧ, KOMTRAX
9
25
23
24
12
10
11
21
14
8
22
25
1
20
17
16
5
18
19
20
4
15
6
7
2
3
13
FIT
1:1
100%

Артикул

Название

Примечание

Количество

1

7826-20-7037

Controller

SN: 3485-UP

1шт.

1

7826-20-7036

Controller

SN: 3404-3484

1шт.

1

7826-20-7035

Controller

SN: 3297-3403

1шт.

1

7826-20-7034

Controller

SN: 3001-3296

1шт.

2

01010-80825

Bolt

SN: 3001-UP

4шт.

3

01643-30823

Washer

SN: 3001-UP

4шт.

4

11Y-06-33130

Wiring Harness

SN: 3001-UP

1шт.

5

04434-51410

Clip

SN: 3001-UP

1шт.

6

01010-81020

Bolt

SN: 3001-UP

1шт.

7

01643-31032

Washer

SN: 3001-UP

1шт.

8

11Y-06-33421

Plate

SN: 3001-UP

1шт.

9

01010-D0816

Bolt

SN: 3001-UP

2шт.

10

01643-70823

Washer

SN: 3001-UP

2шт.

11

12Y-06-13170

Cover

SN: 3001-UP

1шт.

12

11Y-06-33112

Cable

SN: 3485-UP

1шт.

12

11Y-06-33111

Cable

SN: 3001-3484

1шт.

13

08034-20519

Band

SN: 3001-UP

11шт.

14

8A13-10-2100

Antenna

SN: 3001-UP

1шт.

15

8A13-80-1110

Cover

SN: 3001-UP

1шт.

16

8A13-80-1120

Cap

SN: 3001-UP

1шт.

17

8A13-80-1130

Cap

SN: 3001-UP

1шт.

18

8A13-80-1140

Cap

SN: 3001-UP

1шт.

19

08034-00536

Band

SN: 3001-UP

1шт.

20

08034-00414

Band

SN: 3001-UP

3шт.

21

04434-51408

Clip

SN: 3001-UP

1шт.

22

01010-80812

Bolt

SN: 3001-UP

1шт.

23

01643-30823

Washer

SN: 3001-UP

1шт.

24

11Y-Z78-1261

Duct

SN: 3001-UP

1шт.

25

11Y-Z78-1340

Plate

SN: 3001-UP

2шт.

Выбрано товаров: 0