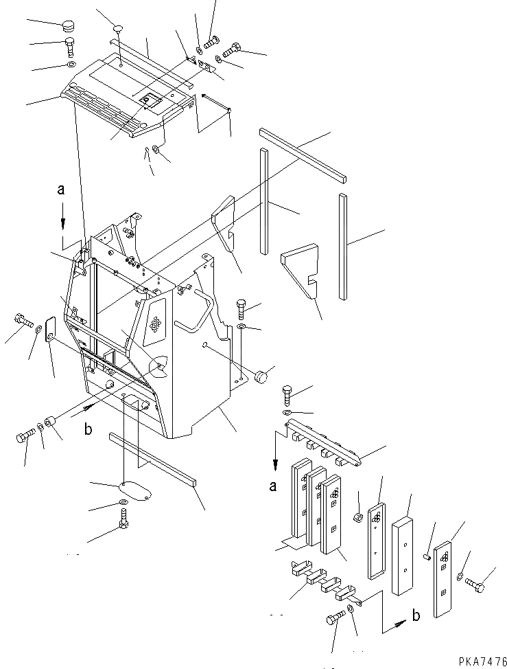
Запчасти Komatsu D41E-6 ЗАЩИТА РАДИАТОРА (REGULATION OF EC INCLUSION)(№B-B) ЧАСТИ КОРПУСА

Схема запчастей Komatsu D41E-6 - ЗАЩИТА РАДИАТОРА (REGULATION OF EC INCLUSION)(№B-B) ЧАСТИ КОРПУСА
1
2
3
4
5
6
7
7
8
8
9
10
11
12
12
13
14
15
16
17
18
19
20
21
22
23
24
25
26
27
28
29
30
31
32
33
34
35
36
37
38
39
40
41
42
43
43
43
43
44
45
46
47
FIT
1:1
100%

Артикул

Название

Примечание

Количество

1

124-A62-2111

GUARD

SN: B20001-B20500

1шт.

2

124-A62-2120

ABSORBER

SN: B20001-B20500

1шт.

3

124-A62-2130

ABSORBER

SN: B20001-B20500

1шт.

4

124-A62-2570

ANGLE

SN: B20001-@

1шт.

5

124-A62-2580

ANGLE

SN: B20001-@

1шт.

6

195-979-7620

SEAT

SN: B20001-@

2шт.

7

124-54-51160

SHEET

SN: B20001-@

2шт.

8

124-54-51170

SHEET

SN: B20001-@

2шт.

9

09415-02512

CAP

SN: B20001-@

1шт.

10

01010-81645

BOLT

SN: B20001-@

4шт.

11

01010-81655

BOLT

SN: B20001-@

2шт.

12

01643-31645

WASHER

SN: B20001-@

6шт.

13

144-54-81310

SPACER

SN: B20001-@

2шт.

14

124-54-51220

COVER

SN: B20001-B20500

1шт.

15

01010-81225

BOLT

SN: B20001-B20500

1шт.

16

01643-31232

WASHER

SN: B20001-B20500

1шт.

17

124-54-51231

COVER

SN: B20001-@

1шт.

18

01010-81225

BOLT

SN: B20001-@

2шт.

19

01643-31232

WASHER

SN: B20001-@

2шт.

20

124-54-51153

COVER

SN: B20001-B20500

1шт.

21

14X-54-12910

LOCK (WELDED)

SN: B20001-@

1шт.

22

124-54-51240

SHEET

SN: B20001-@

1шт.

23

124-54-51271

ROD

SN: B20001-@

1шт.

24

04050-11612

PIN

SN: B20001-@

1шт.

25

01643-30823

WASHER

SN: B20001-@

1шт.

26

20B-54-12210

SPRING

SN: B20001-@

1шт.

27

01220-40406

SCREW

SN: B20001-@

2шт.

28

01641-20608

WASHER

SN: B20001-B20500

2шт.

29

14X-54-12150

PLATE

SN: B20001-@

1шт.

30

01010-81225

BOLT

SN: B20001-@

2шт.

31

01643-31232

WASHER

SN: B20001-@

2шт.

32

203-54-32260

STOPPER

SN: B20001-@

2шт.

33

01010-81225

BOLT

SN: B20001-@

4шт.

34

01643-31232

WASHER

SN: B20001-@

4шт.

35

09415-02512

CAP

SN: B20001-@

2шт.

36

124-A62-2210

BRACKET,UPPER

SN: B20001-@

1шт.

37

01010-81225

BOLT

SN: B20001-@

2шт.

38

01643-31232

WASHER

SN: B20001-@

2шт.

39

124-A62-2220

BRACKET,LOWER

SN: B20001-@

1шт.

40

01010-81225

BOLT

SN: B20001-@

2шт.

41

01643-31232

WASHER

SN: B20001-@

2шт.

42

124-A62-2230

FELT

SN: B20001-@

4шт.

43

124-A62-2240

COVER

SN: B20001-@

8шт.

44

125-54-27360

COLLAR

SN: B20001-@

8шт.

45

01010-81060

BOLT

SN: B20001-@

8шт.

46

01643-31032

WASHER

SN: B20001-@

8шт.

47

01580-11008

NUT

SN: B20001-@

8шт.

Выбрано товаров: 47