Запчасти Komatsu D41E-6 ROPS (БЕЗ КАБИНЫ) КАБИНА ОПЕРАТОРА И СИСТЕМА УПРАВЛЕНИЯ

Схема запчастей Komatsu D41E-6 - ROPS (БЕЗ КАБИНЫ) КАБИНА ОПЕРАТОРА И СИСТЕМА УПРАВЛЕНИЯ
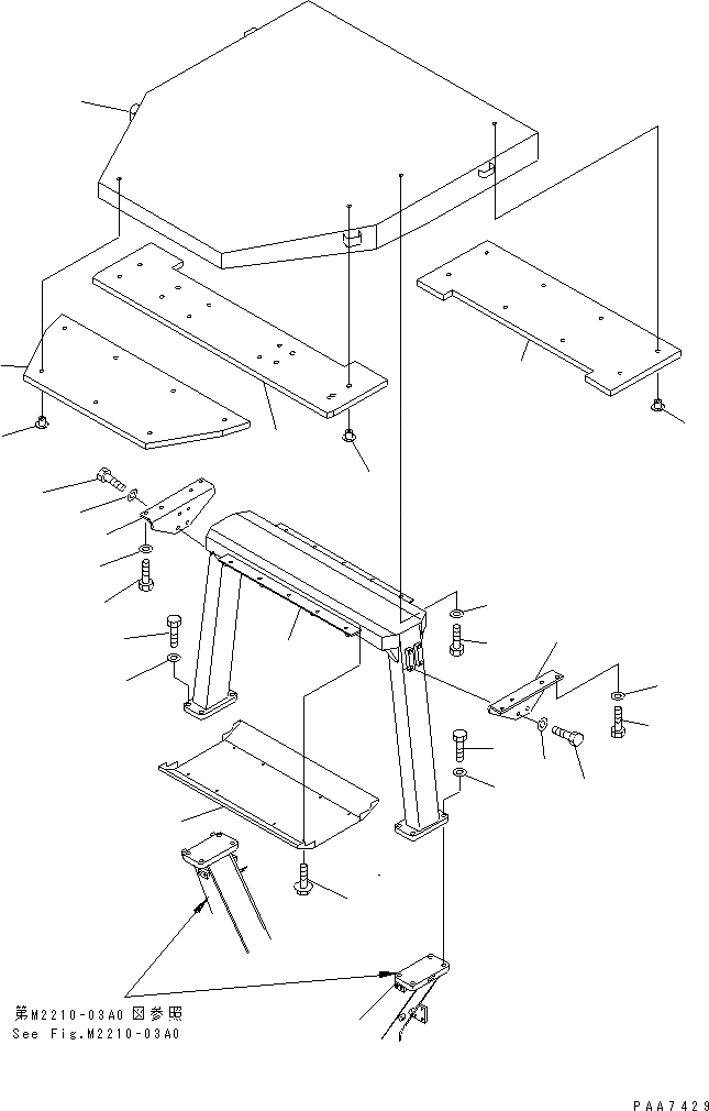
1
2
2
3
3
4
5
6
7
7
7
8
8
8
8
8
9
9
10
10
11
12
13
14
14
14
FIT
1:1
100%

Артикул

Название

Примечание

Количество

1

124-978-5111

GUARD

SN: B20001-UP

1шт.

2

01010-82060

BOLT

SN: B20001-UP

8шт.

3

01643-32060

WASHER

SN: B20001-UP

8шт.

4

124-978-5151

ROOF

SN: B20001-UP

1шт.

5

124-978-5180

LINING

SN: B20001-UP

1шт.

6

01439-00820

BOLT

SN: B20001-UP

8шт.

7

01010-81230

BOLT

SN: B20001-UP

18шт.

8

01643-31232

WASHER

SN: B20001-UP

26шт.

9

14X-978-1172

BRACKET

SN: B20001-UP

2шт.

10

01010-81235

BOLT

SN: B20001-UP

8шт.

11

14X-978-1230

LINING,ROOF

SN: B20001-UP

1шт.

12

124-978-5160

LINING,ROOF

SN: B20001-UP

1шт.

13

124-978-5170

LINING,ROOF

SN: B20001-UP

1шт.

14

14X-978-1340

BUTTON

SN: B20001-UP

23шт.

Выбрано товаров: 0