Запчасти Komatsu D41PF-6K ОСНОВН. КОНСТРУКЦИЯ (УПРАВЛ-Е ПОДАЧ. ТОПЛИВА) КАБИНА ОПЕРАТОРА И СИСТЕМА УПРАВЛЕНИЯ

Схема запчастей Komatsu D41PF-6K - ОСНОВН. КОНСТРУКЦИЯ (УПРАВЛ-Е ПОДАЧ. ТОПЛИВА) КАБИНА ОПЕРАТОРА И СИСТЕМА УПРАВЛЕНИЯ
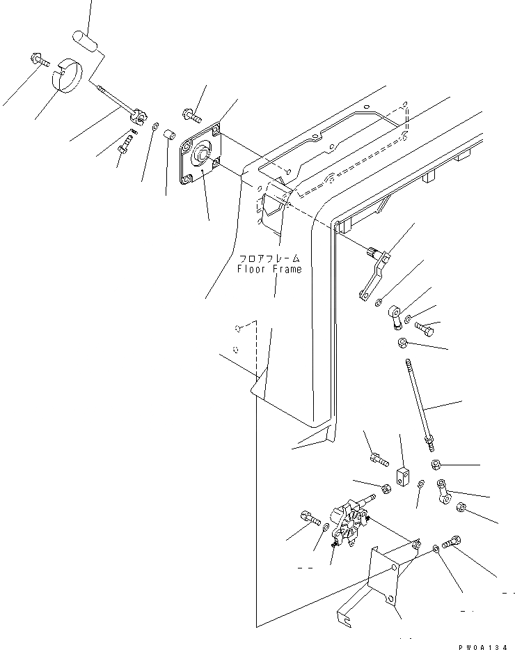
1
2
3
4
5
6
7
8
9
10
11
12
13
13
14
15
16
17
18
19
20
21
22
23
24
25
26
27
28
29
30
FIT
1:1
100%

Артикул

Название

Примечание

Количество

1

09304-01240

KNOB

SN: 29021-UP

1шт.

2

14X-43-13373

LEVER

SN: 29021-UP

1шт.

3

01010-80830

BOLT

SN: 29021-UP

1шт.

4

01643-30823

WASHER

SN: 29021-UP

1шт.

5

14X-43-13432

COVER

SN: 29021-UP

1шт.

6

01439-00814

BOLT

SN: 29021-UP

1шт.

7

01640-22032

WASHER

SN: 29021-UP

1шт.

8

14X-43-13440

BRACKET

SN: 29021-UP

1шт.

9

14X-43-13450

SHEET

SN: 29021-UP

1шт.

10

06124-02020

BEARING

SN: 29021-UP

1шт.

11

124-43-51311

LEVER

SN: 29021-UP

1шт.

12

04250-81056

END

SN: 29021-UP

1шт.

13

04254-11032

SPACER

SN: 29021-UP

2шт.

14

01010-81035

BOLT

SN: 29021-UP

1шт.

15

04248-31028

ROD

SN: 29021-UP

1шт.

16

01508-41006

NUT

SN: 29021-UP

1шт.

17

04250-91056

END

SN: 29021-UP

1шт.

18

01582-11008

NUT

SN: 29021-UP

1шт.

19

134-43-68251

BRACKET

SN: 30101-UP

1шт.

|19

124-43-51571

BRACKET

SN: 29021-30100

1шт.

20

124-43-51390

LEVER ASS'Y

SN: 29021-UP

1шт.

21

01252-41030

BOLT

SN: 29021-UP

2шт.

22

01643-31032

WASHER

SN: 29021-UP

2шт.

23

124-43-54590

JOINT

SN: 29021-UP

1шт.

24

01582-11008

NUT

SN: 29021-UP

1шт.

25

01439-01020

BOLT

SN: 29021-UP

4шт.

26

01010-81220

BOLT

SN: 29021-UP

2шт.

27

01643-31232

WASHER

SN: 29021-UP

2шт.

28

04254-11032

SPACER

SN: 29021-UP

1шт.

29

01010-81040

BOLT

SN: 29021-UP

1шт.

30

01580-11008

NUT

SN: 29021-UP

1шт.

Выбрано товаров: 31