Запчасти Komatsu D41PF-6K-T2 ОСНОВН. КОНСТРУКЦИЯ (РУЛЕВ. УПРАВЛЕНИЕ УПРАВЛ-Е) (/) (ДЛЯ F-R ТРАНСМИССИЯ) КАБИНА ОПЕРАТОРА И СИСТЕМА УПРАВЛЕНИЯ

Схема запчастей Komatsu D41PF-6K-T2 - ОСНОВН. КОНСТРУКЦИЯ (РУЛЕВ. УПРАВЛЕНИЕ УПРАВЛ-Е) (/) (ДЛЯ F-R ТРАНСМИССИЯ) КАБИНА ОПЕРАТОРА И СИСТЕМА УПРАВЛЕНИЯ
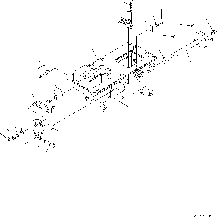
1
2
3
4
5
6
7
8
9
10
11
12
13
14
15
16
17
18
19
20
21
22
22
FIT
1:1
100%

Артикул

Название

Примечание

Количество

1

12G-43-51320

LEVER

SN: 29021-UP

1шт.

2

04010-00519

KEY

SN: 29021-UP

1шт.

3

01010-80830

BOLT

SN: 29021-UP

1шт.

4

01643-30823

WASHER

SN: 29021-UP

1шт.

5

12G-43-51333

SHAFT

SN: 30008-UP

1шт.

|5

12G-43-51332

SHAFT

SN: 29021-30007

1шт.

6

07020-00000

FITTING

SN: 29021-UP

1шт.

7

12G-43-51312

LEVER

SN: 29021-UP

1шт.

8

04010-00519

KEY

SN: 29021-UP

1шт.

9

01010-80830

BOLT

SN: 29021-UP

1шт.

10

01643-30823

WASHER

SN: 29021-UP

1шт.

11

12G-43-51283

LEVER

SN: 30008-UP

1шт.

|11

12G-43-51282

LEVER

SN: 29021-30007

1шт.

12

06004-06800

BEARING

SN: 29021-UP

1шт.

13

12G-43-51430

COLLAR

SN: 29021-UP

1шт.

14

01590-30809

NUT

SN: 29021-UP

1шт.

15

04050-12015

PIN

SN: 29021-UP

1шт.

16

12G-43-51340

PLATE

SN: 29021-UP

1шт.

17

01590-30809

NUT

SN: 29021-UP

1шт.

18

04050-12015

PIN

SN: 29021-UP

1шт.

19

12G-43-51112

BRACKET

SN: 29021-UP

1шт.

20

06123-01614

BEARING

SN: 29021-UP

2шт.

21

06123-01414

BEARING

SN: 29021-UP

4шт.

22

06124-02020

BEARING

SN: 29021-UP

2шт.

Выбрано товаров: 24