Запчасти Komatsu SA12V140-1E-A ТОПЛИВОПРОВОД.(№-8) ДВИГАТЕЛЬ

Схема запчастей Komatsu SA12V140-1E-A - ТОПЛИВОПРОВОД.(№-8) ДВИГАТЕЛЬ
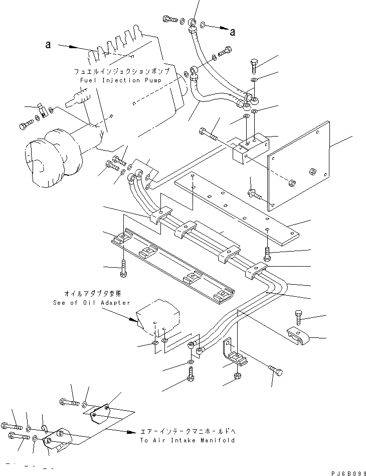
1
2
3
4
5
6
7
8
8
8
9
10
11
11
12
12
13
14
15
16
16
16
17
18
19
20
21
22
23
24
24
24
25
26
27
27
28
28
29
30
31
32
1
2
3
4
5
6
7
8
8
8
9
10
11
11
12
12
13
14
15
16
16
16
17
18
19
20
21
22
23
24
24
24
25
26
27
27
28
28
29
30
31
32
FIT
1:1
100%

Артикул

Название

Примечание

Количество

1

6215-71-7350

ADAPTER

SN: 10100-11108

1шт.

2

6215-71-7360

PLATE

SN: 10100-11108

1шт.

3

01010-81055

BOLT

SN: 10100-11108

2шт.

4

01435-01020

BOLT

SN: 10100-11108

4шт.

5

07271-01430

HOSE

SN: 10134-@

1шт.

|5

07271-01435

HOSE

SN: 10100-10133

1шт.

6

6215-71-7190

HOSE

SN: 10234-@

1шт.

|6

07271-01445

HOSE

SN: 10100-10233

1шт.

7

07206-31014

BOLT,JOINT

SN: 10100-@

2шт.

8

07005-01412

GASKET (K2)

SN: 10100-@

4шт.

9

6215-71-7311

TUBE

SN: 11054-@

1шт.

|9

0

TUBE

SN: 10100-11053

1шт.

10

6215-71-7321

TUBE

SN: 11054-@

1шт.

|10

0

TUBE

SN: 10100-11053

1шт.

11

07206-31014

BOLT,JOINT

SN: 10100-@

2шт.

12

07005-01012

GASKET (K2)

SN: 10100-@

4шт.

13

6215-71-7170

PLATE

SN: 10100-@

1шт.

14

01010-81030

BOLT

SN: 10100-@

5шт.

15

6215-71-7180

PLATE

SN: 10100-11108

1шт.

16

6127-71-6660

CLIP

SN: 10100-11108

4шт.

17

01010-30835

BOLT

SN: 10100-11108

4шт.

18

6215-71-7380

CLIP

SN: 10100-@

1шт.

19

6127-71-6660

CLIP

SN: 10100-11108

1шт.

20

01010-80840

BOLT

SN: 10100-@

1шт.

21

01580-00806

NUT

SN: 10100-@

1шт.

22

01010-81020

BOLT

SN: 10100-@

1шт.

23

07206-31014

BOLT,JOINT

SN: 10100-@

2шт.

24

07005-01412

GASKET (K2)

SN: 10100-@

4шт.

25

198-04-41151

BRACKET

SN: 10639-@

1шт.

26

6215-81-8820

BRACKET

SN: 10639-@

1шт.

27

01011-81085

BOLT

SN: 10639-@

2шт.

28

01643-31032

WASHER

SN: 10639-@

2шт.

29

600-050-2320

CLIP

SN: 10233-@

1шт.

30

01011-81070

BOLT

SN: 10639-@

2шт.

31

01643-31032

WASHER

SN: 10639-@

2шт.

32

6128-71-1932

JOINT

SN: 10100-@

1шт.

1

6215-71-7350

ADAPTER

SN: 10100-11108

1шт.

2

6215-71-7360

PLATE

SN: 10100-11108

1шт.

3

01010-81055

BOLT

SN: 10100-11108

2шт.

4

01435-01020

BOLT

SN: 10100-11108

4шт.

5

07271-01430

HOSE

SN: 10134-@

1шт.

|5

07271-01435

HOSE

SN: 10100-10133

1шт.

6

6215-71-7190

HOSE

SN: 10234-@

1шт.

|6

07271-01445

HOSE

SN: 10100-10233

1шт.

7

07206-31014

BOLT,JOINT

SN: 10100-@

2шт.

8

07005-01412

GASKET (K2)

SN: 10100-@

4шт.

9

6215-71-7311

TUBE

SN: 11054-@

1шт.

|9

0

TUBE

SN: 10100-11053

1шт.

10

6215-71-7321

TUBE

SN: 11054-@

1шт.

|10

0

TUBE

SN: 10100-11053

1шт.

11

07206-31014

BOLT,JOINT

SN: 10100-@

2шт.

12

07005-01012

GASKET (K2)

SN: 10100-@

4шт.

13

6215-71-7170

PLATE

SN: 10100-@

1шт.

14

01010-81030

BOLT

SN: 10100-@

5шт.

15

6215-71-7180

PLATE

SN: 10100-11108

1шт.

16

6127-71-6660

CLIP

SN: 10100-11108

4шт.

17

01010-30835

BOLT

SN: 10100-11108

4шт.

18

6215-71-7380

CLIP

SN: 10100-@

1шт.

19

6127-71-6660

CLIP

SN: 10100-11108

1шт.

20

01010-80840

BOLT

SN: 10100-@

1шт.

21

01580-00806

NUT

SN: 10100-@

1шт.

22

01010-81020

BOLT

SN: 10100-@

1шт.

23

07206-31014

BOLT,JOINT

SN: 10100-@

2шт.

24

07005-01412

GASKET (K2)

SN: 10100-@

4шт.

25

198-04-41151

BRACKET

SN: 10639-@

1шт.

26

6215-81-8820

BRACKET

SN: 10639-@

1шт.

27

01011-81085

BOLT

SN: 10639-@

2шт.

28

01643-31032

WASHER

SN: 10639-@

2шт.

29

600-050-2320

CLIP

SN: 10233-@

1шт.

30

01011-81070

BOLT

SN: 10639-@

2шт.

31

01643-31032

WASHER

SN: 10639-@

2шт.

32

6128-71-1932

JOINT

SN: 10100-@

1шт.

Выбрано товаров: 72