Запчасти Komatsu D475A-3 КРЕПЛЕНИЕ КАПОТА (ДЛЯ ДВОЙН. FAIN СПЕЦ-Я.)(№7-) ЧАСТИ КОРПУСА

Схема запчастей Komatsu D475A-3 - КРЕПЛЕНИЕ КАПОТА (ДЛЯ ДВОЙН. FAIN СПЕЦ-Я.)(№7-) ЧАСТИ КОРПУСА
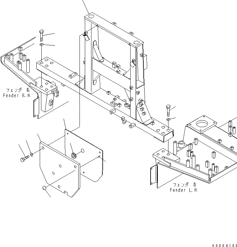
1
2
3
4
5
6
7
8
9
9
10
10
FIT
1:1
100%

Артикул

Название

Примечание

Количество

1

198-54-61720

BRACKET

SN: 10745-UP

1шт.

2

198-54-55381

PLATE

SN: 10745-UP

1шт.

3

124-A62-1910

STUD (WELDED)

SN: 10745-UP

5шт.

4

01010-81230

BOLT

SN: 10745-UP

3шт.

5

01643-31232

WASHER

SN: 10745-UP

3шт.

6

198-54-55370

FELT

SN: 10745-UP

1шт.

7

124-A62-1920

CAP

SN: 10745-UP

5шт.

8

08037-03614

GROMMET

SN: 10745-UP

2шт.

9

01011-82725

BOLT

SN: 10745-UP

8шт.

10

01643-32780

WASHER

SN: 10745-UP

8шт.

Выбрано товаров: 10