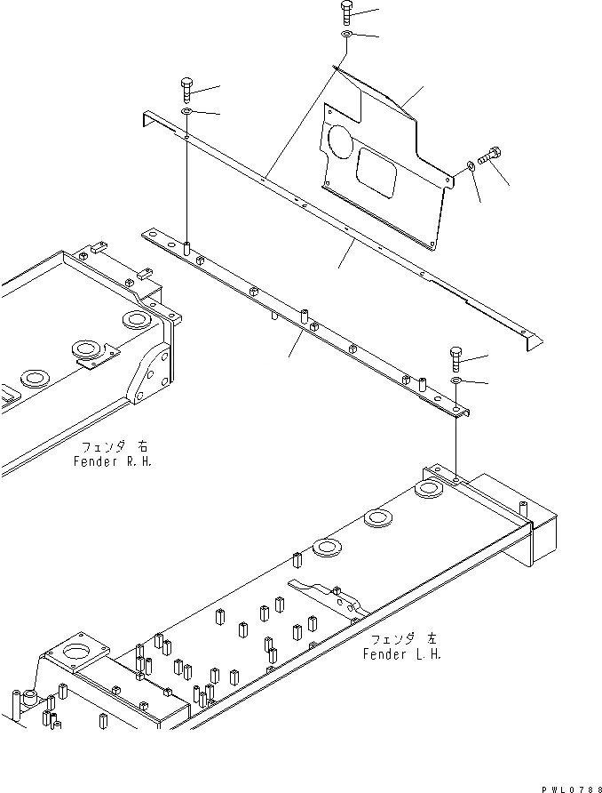
Запчасти Komatsu D475A-3 ЗАДН. КРЫШКА ЧАСТИ КОРПУСА

Схема запчастей Komatsu D475A-3 - ЗАДН. КРЫШКА ЧАСТИ КОРПУСА
1
2
3
4
5
5
6
6
7
8
9
FIT
1:1
100%

Артикул

Название

Примечание

Количество

1

198-54-56152

COVER

SN: 10601-UP

1шт.

2

01010-81225

BOLT

SN: 10601-UP

6шт.

3

01643-31232

WASHER

SN: 10601-UP

6шт.

4

198-54-56162

COVER

SN: 10601-UP

1шт.

5

01010-81225

BOLT

SN: 10601-UP

6шт.

6

01643-31232

WASHER

SN: 10601-UP

6шт.

7

198-54-56142

BRACKET

SN: 10601-UP

1шт.

8

01010-82465

BOLT

SN: 10601-UP

4шт.

9

01643-32460

WASHER

SN: 10601-UP

4шт.

Выбрано товаров: 9