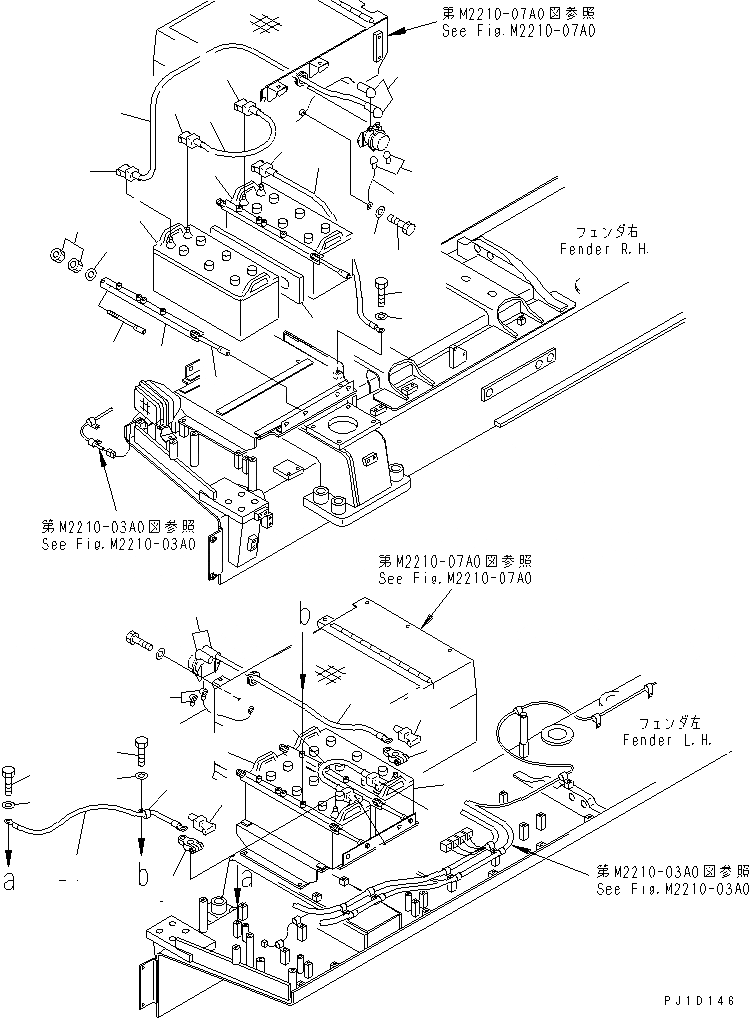
Запчасти Komatsu D475A-3-SC АККУМУЛЯТОР И КРЫЛО ЭЛЕКТРОПРОВОДКА ЧАСТИ КОРПУСА

Схема запчастей Komatsu D475A-3-SC - АККУМУЛЯТОР И КРЫЛО ЭЛЕКТРОПРОВОДКА ЧАСТИ КОРПУСА
1
1
1
1
2
3
4
5
5
6
7
8
9
9
9
9
10
10
10
10
11
11
12
12
13
14
15
15
16
17
18
19
20
21
22
22
23
23
24
25
26
FIT
1:1
100%

Артикул

Название

Примечание

Количество

1

08000-02221

BATTERY,(C200 WET)

SN: 10601-UP

4шт.

|1

08000-32220

BATTERY (165G51),(NS200 WET)

SN: 10601-UP

4шт.

|1

08000-42220

BATTERY (165G51),(NS200 DRY)

SN: 10601-UP

4шт.

|1

08000-12221

BATTERY (C200),(C200 OR F300-20)

SN: 10601-UP

4шт.

|1

08000-10050

ELECTROLYTE,(NS200 DRY) (NOT SHOWN)

SN: 10601-UP

1шт.

|1

08000-10100

ELECTROLYTE,(C200 DRY) (NOT SHOWN)

SN: 10601-UP

1шт.

|1

08000-10200

ELECTROLYTE,(NS200 DRY) (NOT SHOWN)

SN: 10601-UP

1шт.

|1

08000-10200

ELECTROLYTE,(C200 DRY) (NOT SHOWN)

SN: 10601-UP

1шт.

2

08000-00000

TERMINAL¤ (+)

SN: 10601-UP

4шт.

3

08000-00001

TERMINAL¤ (-)

SN: 10601-UP

4шт.

4

198-06-46480

HOLDER

SN: 10601-UP

4шт.

5

08006-40255

ROD

SN: 10601-UP

8шт.

6

01643-31032

WASHER

SN: 10601-UP

8шт.

7

01580-11008

NUT

SN: 10601-UP

16шт.

8

154-06-13262

SEAT

SN: 10601-UP

2шт.

9

08038-22511

CAP

SN: 10660-UP

2шт.

|9

08038-22511

CAP

SN: 10601-10659

4шт.

10

08038-42511

CAP

SN: 10660-UP

6шт.

|10

08038-42511

CAP

SN: 10601-10659

4шт.

11

08038-00035

CAP

SN: 10601-UP

4шт.

12

209-06-19680

WIRE

SN: 10601-UP

2шт.

13

01010-80816

BOLT

SN: 10601-UP

2шт.

14

01643-30823

WASHER

SN: 10601-UP

2шт.

15

195-06-23190

CAP

SN: 10601-UP

4шт.

16

08028-15065

WIRE¤ 650MM

SN: 10601-UP

1шт.

17

08028-65045

WIRE¤ 450MM

SN: 10660-UP

1шт.

|17

08028-15045

WIRE¤ 450MM

SN: 10601-10659

1шт.

18

08028-65065

CABLE

SN: 10601-UP

1шт.

19

08028-65070

WIRE

SN: 10660-UP

1шт.

|19

08028-15045

WIRE¤ 450MM

SN: 10601-10659

1шт.

20

08028-65045

WIRE¤ 450MM

SN: 10601-UP

1шт.

21

08028-15055

WIRE¤ 550MM

SN: 10601-UP

1шт.

22

01010-81025

BOLT

SN: 10601-UP

2шт.

23

01643-31032

WASHER

SN: 10601-UP

2шт.

24

04434-51910

CLIP

SN: 10601-UP

1шт.

25

01010-81016

BOLT

SN: 10601-UP

1шт.

26

01643-31032

WASHER

SN: 10601-UP

1шт.

Выбрано товаров: 37