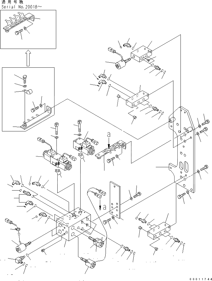
Запчасти Komatsu D475A-5 PPC БЛОК (ДЛЯ ОТВАЛ С ДВОЙН. ПЕРЕКОСОМ) ЧАСТИ КОРПУСА

Схема запчастей Komatsu D475A-5 - PPC БЛОК (ДЛЯ ОТВАЛ С ДВОЙН. ПЕРЕКОСОМ) ЧАСТИ КОРПУСА
1
2
3
4
5
5
5
5
5A
5A
5A
5A
6
6
6
6
7
7
7
7
8
8
8
8
8
9
9
9
9
9
9
10
10
10
10
10
10
11
12
12
13
13
14
14
15
16
17A
17A
17A
17A
17
18
19
20
21
22
23
24
25
26
26
27
27
28
28
29
30
31
32
33
34
35
36
37
38
39
40
40
40
41
41
42
43
44
45
45
46
46
47
47
47A
47B
47C
48
49
50
FIT
1:1
100%

Артикул

Название

Примечание

Количество

1

198-61-61941

BLOCK

SN: 20001-UP

1шт.

2

01010-81030

BOLT

SN: 20001-UP

2шт.

3

01643-31032

WASHER

SN: 20001-UP

2шт.

4

198-06-56520

SOLENOID VALVE

SN: 20001-UP

1шт.

5

20Y-62-16630

NIPPLE

SN: 20001-UP

11шт.

5A

201-60-11390

O-RING

SN: 20001-UP

1шт.

6

20Y-62-19560

O-RING

SN: 20001-UP

1шт.

7

07002-21423

O-RING

SN: 20001-UP

11шт.

8

02782-10210

ELBOW

SN: 20001-UP

8шт.

9

02896-21008

O-RING

SN: 20001-UP

8шт.

10

07002-21423

O-RING

SN: 20001-UP

8шт.

11

07043-70108

PLUG

SN: 20001-UP

2шт.

12

198-61-61950

BLOCK

SN: 20001-UP

2шт.

13

01010-81030

BOLT

SN: 20001-UP

4шт.

14

01643-31032

WASHER

SN: 20001-UP

4шт.

15

02782-10212

ELBOW

SN: 20001-UP

1шт.

16

02896-21008

O-RING

SN: 20001-UP

1шт.

17A

07049-01418

PLUG

SN: 20001-UP

2шт.

17

07002-21423

O-RING

SN: 20001-UP

1шт.

18

198-61-61910

BLOCK

SN: 20001-UP

1шт.

19

01010-81230

BOLT

SN: 20001-UP

3шт.

20

01643-31232

WASHER

SN: 20001-UP

3шт.

21

198-61-61930

PLATE

SN: 20001-UP

1шт.

22

01010-81235

BOLT

SN: 20001-UP

3шт.

23

01643-31232

WASHER

SN: 20001-UP

3шт.

24

198-06-56530

VALVE

SN: 20001-UP

1шт.

25

19M-06-31210

VALVE

SN: 20001-UP

1шт.

26

07000-F1009

O-RING

SN: 20001-UP

8шт.

27

01252-60545

BOLT

SN: 20001-UP

8шт.

28

01601-20513

WASHER

SN: 20001-UP

8шт.

29

07043-70108

PLUG

SN: 20001-UP

8шт.

|30

20Y-62-22271

ELBOW

SN: 20001-UP

1шт.

30

01583-51408

NUT

SN: 20001-UP

1шт.

31

201-60-11390

O-RING

SN: 20001-UP

1шт.

32

20Y-62-19560

O-RING

SN: 20001-UP

1шт.

33

07002-21423

O-RING

SN: 20001-UP

1шт.

34

02782-10312

ELBOW

SN: 20001-UP

1шт.

35

02896-21009

O-RING

SN: 20001-UP

1шт.

36

07002-21423

O-RING

SN: 20001-UP

1шт.

37

02782-10311

ELBOW

SN: 20001-UP

1шт.

38

02896-21009

O-RING

SN: 20001-UP

1шт.

39

07002-21423

O-RING

SN: 20001-UP

1шт.

40

198-06-56520

SOLENOID VALVE

SN: 20001-UP

4шт.

41

08034-20536

BAND

SN: 20001-UP

2шт.

42

198-61-61962

BRACKET

SN: 20001-UP

1шт.

43

01010-81230

BOLT

SN: 20001-UP

4шт.

44

01643-31232

WASHER

SN: 20001-UP

4шт.

45

198-06-62231

BRACKET

SN: 20018-UP

1шт.

|45

198-06-62231

BRACKET

SN: 20001-20017

2шт.

46

01010-81230

BOLT

SN: 20018-UP

1шт.

|46

01010-81230

BOLT

SN: 20001-20017

2шт.

47

01643-31232

WASHER

SN: 20018-UP

1шт.

|47

01643-31232

WASHER

SN: 20001-20017

2шт.

47A

198-06-62240

BRACKET

SN: 20018-UP

1шт.

47B

01010-81230

BOLT

SN: 20018-UP

1шт.

47C

01643-31232

WASHER

SN: 20018-UP

1шт.

48

04434-51212

CLIP

SN: 20001-20017

1шт.

49

01010-81225

BOLT

SN: 20001-20017

1шт.

50

01643-31232

WASHER

SN: 20001-20017

1шт.

Выбрано товаров: 59