Запчасти Komatsu D475A-5E0 ТОПЛИВН. БАК. (ТОПЛИВОПРОВОД.) (С БЫСТР. ЗАПРАВ.) ТОПЛИВН. БАК. AND КОМПОНЕНТЫ

Схема запчастей Komatsu D475A-5E0 - ТОПЛИВН. БАК. (ТОПЛИВОПРОВОД.) (С БЫСТР. ЗАПРАВ.) ТОПЛИВН. БАК. AND КОМПОНЕНТЫ
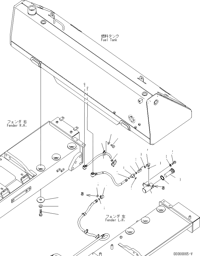
1
2
3
4
5
6
7
8
9
10
11
12
13
14
15
16
17
18
19
19
20
21
22
22
FIT
1:1
100%

Артикул

Название

Примечание

Количество

1

198-09-31210

CLAMP

SN: 30001-UP

1шт.

2

04434-53212

CLIP

SN: 30001-UP

1шт.

3

07095-20523

CUSHION

SN: 30001-UP

1шт.

4

01010-81225

BOLT

SN: 30001-UP

1шт.

5

01643-31232

WASHER

SN: 30001-UP

1шт.

6

01011-82715

BOLT

SN: 30001-UP

6шт.

7

01643-32780

WASHER

SN: 30001-UP

6шт.

8

198-04-31210

PLATE

SN: 30001-UP

6шт.

9

198-04-65452

STRAINER

SN: 30060-UP

1шт.

9

0

CASE

SN: 30001-30059

1шт.

10

195-04-11150

STRAINER

SN: 30001-UP

1шт.

11

07000-03065

O-RING

SN: 30001-UP

1шт.

12

01010-81235

BOLT

SN: 30001-UP

2шт.

13

01643-31232

WASHER

SN: 30001-UP

2шт.

14

569-43-83610

ELBOW

SN: 30001-UP

1шт.

15

07002-12034

O-RING

SN: 30001-UP

1шт.

16

02896-11018

O-RING

SN: 30001-UP

1шт.

17

14X-04-21630

ELBOW

SN: 30001-UP

1шт.

18

14X-04-21620

VALVE

SN: 30001-UP

1шт.

19

07002-12034

O-RING

SN: 30001-UP

2шт.

20

419-62-33291

TEE

SN: 30001-UP

1шт.

21

07002-12034

O-RING

SN: 30001-UP

1шт.

22

02896-11015

O-RING

SN: 30001-UP

2шт.

Выбрано товаров: 23