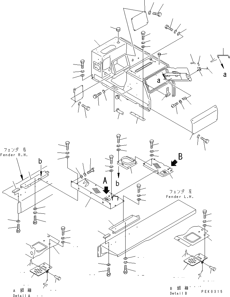
Запчасти Komatsu D50A-17 КОРПУС И ПОЛ ЧАСТИ КОРПУСА

Схема запчастей Komatsu D50A-17 - КОРПУС И ПОЛ ЧАСТИ КОРПУСА
1
2
3
4
5
6
7
8
9
10
11
12
13
14
15
16
17
18
18
18
19
19
19
20
21
22
23
24
25
26
27
28
29
30
31
32
32
33
33
34
34
35
35
36
36
37
37A
38
38A
39
39A
40
40
41
41
42
42
43
43
44
45
45
45
45
45
46
46
47
47
47
47
47
47
47
48
48
48
48
48
48
48
49
49
50
50
51
51
FIT
1:1
100%

Артикул

Название

Примечание

Количество

1

130-54-72411

BOX

SN: 80001-UP

1шт.

|1

120-54-32121

BOX

SN: 80001-UP

1шт.

2

09461-00021

LEVER

SN: 80001-UP

1шт.

3

09461-00023

SPRING

SN: 80001-UP

1шт.

4

09461-00022

PIN

SN: 80001-UP

1шт.

5

04050-13018

PIN,COTTER

SN: 80001-UP

2шт.

6

120-54-32431

ROD

SN: 80001-UP

1шт.

7

04050-13022

PIN,COTTER

SN: 80001-UP

1шт.

8

20R-54-11460

SPRING

SN: 80001-UP

1шт.

9

01220-40512

SCREW

SN: 80001-UP

1шт.

10

01601-00513

WASHER,SPRING

SN: 80001-UP

1шт.

11

124-54-21710

SPRING

SN: 80001-UP

1шт.

12

01010-30816

BOLT

SN: 80001-UP

2шт.

13

01602-00825

WASHER,SPRING

SN: 80001-UP

2шт.

14

01640-20816

WASHER

SN: 80001-UP

2шт.

15

120-54-32141

COVER

SN: 80001-UP

1шт.

16

120-54-32161

COVER

SN: 80001-UP

1шт.

17

120-54-32151

COVER

SN: 80001-UP

1шт.

18

01010-31225

BOLT

SN: 80001-UP

12шт.

19

01602-01236

WASHER,SPRING

SN: 80001-UP

12шт.

20

120-54-32341

PLATE

SN: 80001-UP

1шт.

21

01010-31230

BOLT

SN: 80001-UP

3шт.

22

01602-01236

WASHER,SPRING

SN: 80001-UP

3шт.

23

07049-01215

PLUG

SN: 80001-UP

5шт.

24

09415-03614

CAP

SN: 80001-UP

1шт.

25

09415-01008

CAP

SN: 80001-UP

7шт.

26

120-54-32331

SPACER

SN: 80001-UP

1шт.

27

01010-31270

BOLT

SN: 80001-UP

4шт.

28

01602-01236

WASHER,SPRING

SN: 80001-UP

4шт.

29

01643-31232

WASHER

SN: 80001-UP

4шт.

30

130-54-72280

FLOOR,L.H.

SN: 80001-UP

1шт.

31

130-54-72270

FLOOR,R.H.

SN: 80001-UP

1шт.

32

01010-51230

BOLT

SN: 80001-UP

6шт.

33

01602-21236

WASHER,SPRING

SN: 80001-UP

6шт.

34

01643-31232

WASHER

SN: 80001-UP

6шт.

35

144-54-26241

FLOOR

SN: 81804-UP

1шт.

|35

144-54-26240

FLOOR

SN: 80001-81803

1шт.

36

130-54-72311

FLOOR

SN: 81804-UP

1шт.

|36

130-54-72310

FLOOR

SN: 80001-81803

1шт.

37

144-54-26320

COVER

SN: 80001-UP

1шт.

37A

130-54-72320

COVER

SN: 80001-UP

1шт.

38

141-54-12290

SPRING

SN: 80001-UP

1шт.

38A

09463-00002

SPRING

SN: 80001-UP

1шт.

39

04205-10616

PIN

SN: 80001-UP

2шт.

39A

04205-10618

PIN

SN: 80001-UP

2шт.

40

04050-11610

PIN,COTTER

SN: 80001-UP

4шт.

41

01010-51025

BOLT

SN: 80001-UP

4шт.

42

01602-21030

WASHER,SPRING

SN: 80001-UP

4шт.

43

01643-31032

WASHER

SN: 80001-UP

4шт.

44

144-54-26230

FLOOR

SN: 80001-UP

1шт.

45

01010-51225

BOLT

SN: 80001-UP

14шт.

46

01010-51230

BOLT

SN: 80001-UP

5шт.

47

01602-21236

WASHER,SPRING

SN: 80001-UP

19шт.

48

01643-31232

WASHER

SN: 80001-UP

19шт.

49

120-54-35240

PLATE

SN: 80001-UP

2шт.

50

01010-51650

BOLT

SN: 80001-UP

4шт.

51

01643-31645

WASHER

SN: 80001-UP

4шт.

Выбрано товаров: 0