Запчасти Komatsu D50A-18 ЗАЩИТА РАДИАТОРА (ДЛЯ ANGLE И ПРЯМ. ОТВАЛ С ПЕРЕКОСОМ) ЧАСТИ КОРПУСА

Схема запчастей Komatsu D50A-18 - ЗАЩИТА РАДИАТОРА (ДЛЯ ANGLE И ПРЯМ. ОТВАЛ С ПЕРЕКОСОМ) ЧАСТИ КОРПУСА
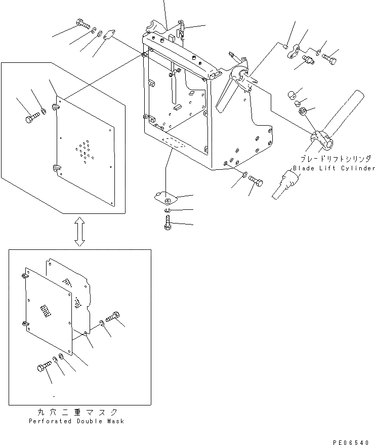
1
1A
2
3
4
4
5
5
6
6
6A
7
8
8A
9
10
11
12
13
14
15
16
17
18
19
20
21
22
23
FIT
1:1
100%

Артикул

Название

Примечание

Количество

1

130-54-81111

GUARD,RADIATOR

SN: 83209-UP

1шт.

|1

130-54-81110

GUARD,RADIATOR

SN: 83001-83208

1шт.

1A

130-54-61370

CATCHER ASS'Y,ENGINE HOOD (WELDED)

SN: 83001-UP

2шт.

2

01019-12010

BOLT

SN: 83001-UP

16шт.

3

01643-32060

WASHER

SN: 83001-UP

16шт.

4

134-54-31251

GRILLE

SN: 83104-UP

1шт.

|4

134-54-31250

GRILLE

SN: 83001-83103

1шт.

|4

134-54-31211

MASK,FRONT (PERFORATED DOUBLE MASK)

SN: 83001-UP

1шт.

5

01010-51640

BOLT

SN: 83001-UP

6шт.

|5

01010-51645

BOLT,(PERFORATED DOUBLE MASK)

SN: 83001-UP

6шт.

6

01643-31645

WASHER

SN: 83001-UP

6шт.

6A

01602-21648

WASHER,SPRING(PERFORATED DOUBLE MASK)

SN: 83001-UP

6шт.

7

130-54-71130

COVER

SN: 83001-UP

1шт.

8

01010-51235

BOLT

SN: 83001-UP

2шт.

8A

01602-21236

WASHER,SPRING

SN: 83001-UP

2шт.

9

01643-31232

WASHER

SN: 83001-UP

2шт.

10

130-54-71120

COVER

SN: 83001-UP

1шт.

11

01010-51230

BOLT

SN: 83001-UP

1шт.

12

01602-21236

WASHER,SPRING

SN: 83001-UP

1шт.

13

130-54-61440

HOUSING

SN: 83001-UP

4шт.

14

130-54-61450

BUSHING

SN: 83001-UP

4шт.

15

07145-00045

SEAL,DUST

SN: 83001-UP

4шт.

16

130-54-61420

CAP

SN: 83001-UP

4шт.

17

07020-00000

FITTING,GREASE

SN: 83001-UP

4шт.

18

170-70-15190

PIN,DOWEL

SN: 83001-UP

4шт.

19

01010-51460

BOLT

SN: 83001-UP

8шт.

20

01602-21442

WASHER,SPRING

SN: 83001-UP

8шт.

21

134-54-31290

MASK,REAR (PERFORATED DOUBLE MASK)

SN: 83209-UP

1шт.

|21

134-54-31221

MASK,REAR (PERFORATED DOUBLE MASK)

SN: 83001-83208

1шт.

22

01010-51225

BOLT,(PERFORATED DOUBLE MASK)

SN: 83001-UP

4шт.

23

01602-21236

WASHER,SPRING(PERFORATED DOUBLE MASK)

SN: 83001-UP

4шт.

Выбрано товаров: 31