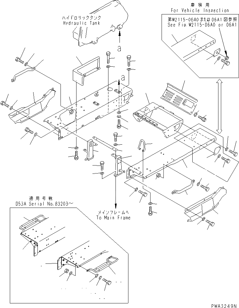
Запчасти Komatsu D53A-18 КРЫЛО И ЗАДН. КРЫШКА (ДЛЯ ПОВОРОТН. ОТВАЛА С ИЗМ. УГЛОМ DOZER) ЧАСТИ КОРПУСА

Схема запчастей Komatsu D53A-18 - КРЫЛО И ЗАДН. КРЫШКА (ДЛЯ ПОВОРОТН. ОТВАЛА С ИЗМ. УГЛОМ DOZER) ЧАСТИ КОРПУСА
1
1
2
3
4
5
6
7
8
8
8
9
9
10
11
12
13
14
14
14
15
15
15
16
17
18
19
19
20
21
21
21
22
22
23
23
24
24
25
26
27
28
28
29
29
30
30
31
31
32
33
34
35
36
37
38
38
39
40
41
41
42
FIT
1:1
100%

Артикул

Название

Примечание

Количество

1

13F-54-32210

BRACKET

SN: 83001-UP

2шт.

2

01010-51645

BOLT

SN: 83001-UP

4шт.

3

01643-31645

WASHER

SN: 83001-UP

4шт.

4

130-54-72250

BRACKET

SN: 83001-UP

1шт.

5

01010-51435

BOLT

SN: 83001-UP

4шт.

6

01643-31445

WASHER

SN: 83001-UP

4шт.

7

130-54-82240

FRAME

SN: 83001-UP

1шт.

8

130-54-82213

FENDER,L.H. (D53A)

SN: 83203-UP

1шт.

|8

130-54-82212

FENDER,L.H. (D53A)

SN: 83071-83202

1шт.

|8

130-54-82212

FENDER,L.H. (D50A)

SN: 83071-UP

1шт.

|8

130-54-82211

FENDER,L.H.

SN: 83040-83070

1шт.

|8

0

FENDER,L.H.

SN: 83001-83039

1шт.

|8

13F-B60-1130

FENDER,L.H. (FOR VEHICLE INSPECTION)

SN: 83104-UP

1шт.

|8

130-B60-1170

FENDER,L.H. (FOR VEHICLE INSPECTION)

SN: 83001-83103

1шт.

9

130-54-82223

FENDER,R.H. (D53A)

SN: 83203-UP

1шт.

|9

130-54-82222

FENDER,R.H. (D53A)

SN: 83071-83202

1шт.

|9

130-54-82222

FENDER,R.H. (D50A)

SN: 83071-UP

1шт.

|9

130-54-82221

FENDER,R.H.

SN: 83040-83070

1шт.

|9

0

FENDER,R.H.

SN: 83001-83039

1шт.

|9

130-B60-1180

FENDER,R.H. (FOR VEHICLE INSPECTION)

SN: 83001-UP

1шт.

10

01010-52455

BOLT

SN: 83001-UP

6шт.

11

01643-32460

WASHER

SN: 83001-UP

6шт.

12

01010-52050

BOLT

SN: 83001-UP

2шт.

13

01643-32060

WASHER

SN: 83001-UP

2шт.

14

01010-51435

BOLT

SN: 83001-UP

20шт.

15

01643-31445

WASHER

SN: 83001-UP

20шт.

16

130-54-82111

COVER,L.H.

SN: 83071-UP

1шт.

|16

130-54-82110

COVER,L.H.

SN: 83001-83070

1шт.

17

130-54-82121

COVER,R.H.

SN: 83071-UP

1шт.

|17

130-54-82120

COVER,R.H.

SN: 83001-83070

1шт.

18

130-54-82150

COVER,REAR

SN: 83001-UP

1шт.

19

01010-51220

BOLT

SN: 83001-UP

14шт.

20

01010-51225

BOLT

SN: 83001-UP

4шт.

21

01643-31232

WASHER

SN: 83001-UP

18шт.

22

130-54-62290

COVER

SN: 83001-UP

2шт.

|22

130-A60-2180

COVER,(FOR VEHICLE INSPECTION)

SN: 83001-UP

2шт.

23

01010-51230

BOLT

SN: 83001-UP

4шт.

24

01643-31232

WASHER

SN: 83001-UP

4шт.

25

120-54-41130

HANDLE

SN: 83001-UP

2шт.

26

01010-81235

BOLT

SN: 83001-UP

4шт.

27

01643-31232

WASHER

SN: 83001-UP

4шт.

28

175-54-22840

HANDLE,(D50A)

SN: 83001-UP

2шт.

|28

175-54-22840

HANDLE,(D53A)

SN: 83001-83202

2шт.

29

01010-51440

BOLT,(D50A)

SN: 83001-UP

4шт.

|29

01010-51440

BOLT,(D53A)

SN: 83001-83202

4шт.

30

01643-31445

WASHER,(D50A)

SN: 83001-UP

4шт.

|30

01643-31445

WASHER,(D53A)

SN: 83001-83202

4шт.

31

01580-11411

NUT,(D50A)

SN: 83001-UP

4шт.

|31

01580-11411

NUT,(D53A)

SN: 83001-83202

4шт.

32

144-54-83370

COVER,(D53A)

SN: 83203-UP

1шт.

|32

144-54-83170

COVER,(D53A)

SN: 83001-83202

1шт.

|32

144-54-83170

COVER,(D50A)

SN: 83001-UP

1шт.

33

01010-51225

BOLT

SN: 83001-UP

4шт.

34

01643-31232

WASHER

SN: 83001-UP

4шт.

35

01010-81470

BOLT

SN: 83001-UP

5шт.

36

01602-21442

WASHER,SPRING

SN: 83001-UP

5шт.

37

01643-31445

WASHER

SN: 83001-UP

5шт.

38

13G-A62-1210

HANDLE,(D53A)

SN: 83203-UP

2шт.

|38

120-54-32451

SHEET,ANTISKID

SN: 83203-UP

2шт.

39

01010-51255

BOLT,(D53A)

SN: 83203-UP

4шт.

40

01602-21236

WASHER,SPRING (D53A)

SN: 83203-UP

4шт.

41

01643-31232

WASHER,(D53A)

SN: 83203-UP

8шт.

42

01580-11210

NUT,(D53A)

SN: 83203-UP

4шт.

Выбрано товаров: 63