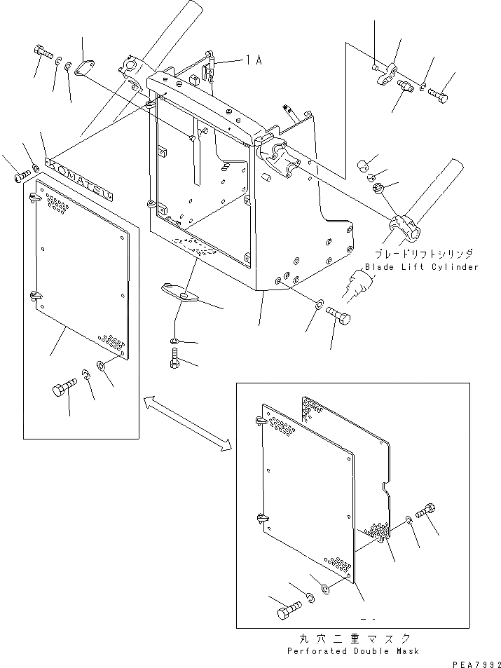
Запчасти Komatsu D53P-17 ЗАЩИТА РАДИАТОРА AND ЦИЛИНДР СУППОРТ ЧАСТИ КОРПУСА

Схема запчастей Komatsu D53P-17 - ЗАЩИТА РАДИАТОРА AND ЦИЛИНДР СУППОРТ ЧАСТИ КОРПУСА
1
2
3
4
5
6
6
7
7
8
8
9
10
11
12
13
14
15
16
17
18
19
20
21
22
23
24
25
26
27
28
29
FIT
1:1
100%

Артикул

Название

Примечание

Количество

1

13F-54-21111

GUARD

SN: 81135-UP

1шт.

1

13F-54-21110

GUARD

SN: 80001-81134

1шт.

1

130-54-61370

CATCHER ASS'Y (WELDED)

SN: 80001-UP

2шт.

2

144-54-11950

PLATE, MARK

SN: 80001-UP

1шт.

3

175-54-41420

SCREW

SN: 80001-UP

2шт.

4

175-54-41430

WASHER

SN: 80001-UP

2шт.

5

130-54-71230

GRILLE

SN: 80001-UP

1шт.

6

01010-51645

BOLT

SN: 80001-UP

6шт.

7

01602-21648

WASHER

SN: 80001-UP

6шт.

8

01643-31645

WASHER

SN: 80001-UP

6шт.

9

130-54-71120

COVER

SN: 80001-UP

1шт.

10

01010-51230

BOLT

SN: 80001-UP

1шт.

11

01602-21236

WASHER

SN: 80001-UP

1шт.

12

130-54-71130

COVER

SN: 80001-UP

1шт.

13

01010-51225

BOLT

SN: 80001-UP

2шт.

14

01602-21236

WASHER,SPRING

SN: 80001-UP

2шт.

15

01643-31232

WASHER

SN: 80001-UP

2шт.

16

01019-12010

BOLT

SN: 80001-UP

16шт.

17

01643-32060

WASHER

SN: 80001-UP

16шт.

18

130-54-61420

CAP

SN: 80001-UP

4шт.

19

07020-00000

FITTING

SN: 80001-UP

4шт.

20

130-54-61440

HOUSING

SN: 80001-UP

4шт.

21

130-54-61450

BUSHING

SN: 80001-UP

4шт.

22

07145-00045

SEAL

SN: 80001-UP

4шт.

23

170-70-15190

PIN

SN: 80001-UP

4шт.

24

01010-51460

BOLT

SN: 80001-UP

8шт.

25

01602-21442

WASHER

SN: 80001-UP

8шт.

26

130-54-71211

MASK,FRONT (PERFORATED DOUBLE MASK)

SN: 81135-UP

4шт.

26

130-54-71210

MASK,FRONT (PERFORATED DOUBLE MASK)

SN: 80001-81134

4шт.

27

13F-54-21211

MASK,REAR (PERFORATED DOUBLE MASK)

SN: 81135-UP

4шт.

27

13F-54-21210

MASK,REAR (PERFORATED DOUBLE MASK)

SN: 80001-81134

4шт.

28

01010-51225

BOLT,(PERFORATED DOUBLE MASK)

SN: 80001-UP

4шт.

29

01602-21236

WASHER,(PERFORATED DOUBLE MASK)

SN: 80001-UP

4шт.

Выбрано товаров: 33