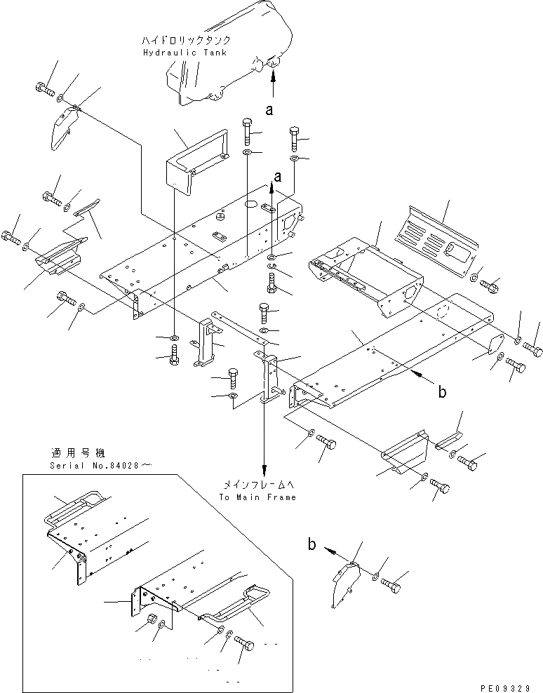
Запчасти Komatsu D53P-18A КРЫЛО И ЗАДН. КРЫШКА (С СТАЛЬНАЯ КАБИНА)(№8-) ЧАСТИ КОРПУСА

Схема запчастей Komatsu D53P-18A - КРЫЛО И ЗАДН. КРЫШКА (С СТАЛЬНАЯ КАБИНА)(№8-) ЧАСТИ КОРПУСА
1
1
2
3
4
5
6
7
8
8
9
9
10
11
12
13
14
14
14
15
15
15
16
17
18
19
20
21
22
23
24
25
26
27
28
29
30
31
32
32
32
32
33
33
33
33
34
35
36
36
37
37
38
38
39
40
41
41
42
FIT
1:1
100%

Артикул

Название

Примечание

Количество

1

13F-54-32210

BRACKET

SN: 83403-UP

2шт.

2

01010-51645

BOLT

SN: 83403-UP

4шт.

3

01643-31645

WASHER

SN: 83403-UP

4шт.

4

130-54-72250

BRACKET

SN: 83403-UP

1шт.

5

01010-51435

BOLT

SN: 83403-UP

4шт.

6

01643-31445

WASHER

SN: 83403-UP

4шт.

7

130-54-82240

FRAME

SN: 83403-UP

1шт.

8

130-54-82213

FENDER,L.H.

SN: 84028-UP

1шт.

|8

130-54-82212

FENDER,L.H.

SN: 83403-84027

1шт.

9

130-54-82223

FENDER,R.H.

SN: 84028-UP

1шт.

|9

130-54-82222

FENDER,R.H.

SN: 83403-84027

1шт.

10

01010-52455

BOLT

SN: 83403-UP

6шт.

11

01643-32460

WASHER

SN: 83403-UP

6шт.

12

01010-52050

BOLT

SN: 83403-UP

2шт.

13

01643-32060

WASHER

SN: 83403-UP

2шт.

14

01010-51435

BOLT

SN: 83403-UP

20шт.

15

01643-31445

WASHER

SN: 83403-UP

20шт.

16

130-54-82150

COVER,REAR

SN: 83403-UP

1шт.

17

01010-51225

BOLT

SN: 83403-UP

4шт.

18

01643-31232

WASHER

SN: 83403-UP

4шт.

19

130-54-62290

COVER

SN: 83403-UP

2шт.

20

01010-51230

BOLT

SN: 83403-UP

4шт.

21

01643-31232

WASHER

SN: 83403-UP

4шт.

22

144-54-83370

COVER

SN: 83403-UP

1шт.

23

01010-51225

BOLT

SN: 83403-UP

4шт.

24

01643-31232

WASHER

SN: 83403-UP

4шт.

25

01010-81470

BOLT

SN: 83403-UP

5шт.

26

01602-21442

WASHER,SPRING

SN: 83403-UP

5шт.

27

01643-31445

WASHER

SN: 83403-UP

5шт.

28

13F-54-32250

COVER,L.H.

SN: 83403-UP

1шт.

29

13F-54-32260

COVER,R.H.

SN: 83403-UP

1шт.

30

134-54-32410

COVER,L.H.

SN: 83403-UP

1шт.

31

134-54-32420

COVER,R.H.

SN: 83403-UP

1шт.

32

01010-51225

BOLT

SN: 83403-UP

10шт.

33

01643-31232

WASHER

SN: 83403-UP

10шт.

34

134-54-32370

COVER,L.H.

SN: 83403-UP

1шт.

35

134-54-32380

COVER,R.H.

SN: 83403-UP

1шт.

36

01010-51220

BOLT

SN: 83403-UP

8шт.

37

01643-31232

WASHER

SN: 83403-UP

8шт.

38

13G-A62-1210

HANDLE

SN: 84028-UP

2шт.

|38

120-54-32451

SHEET,ANTISKID

SN: 84028-UP

2шт.

39

01010-51225

BOLT,SPRING

SN: 84028-UP

4шт.

40

01602-21236

WASHER

SN: 84028-UP

4шт.

41

01643-31232

WASHER

SN: 84028-UP

8шт.

42

01580-11210

NUT

SN: 84028-UP

4шт.

Выбрано товаров: 45