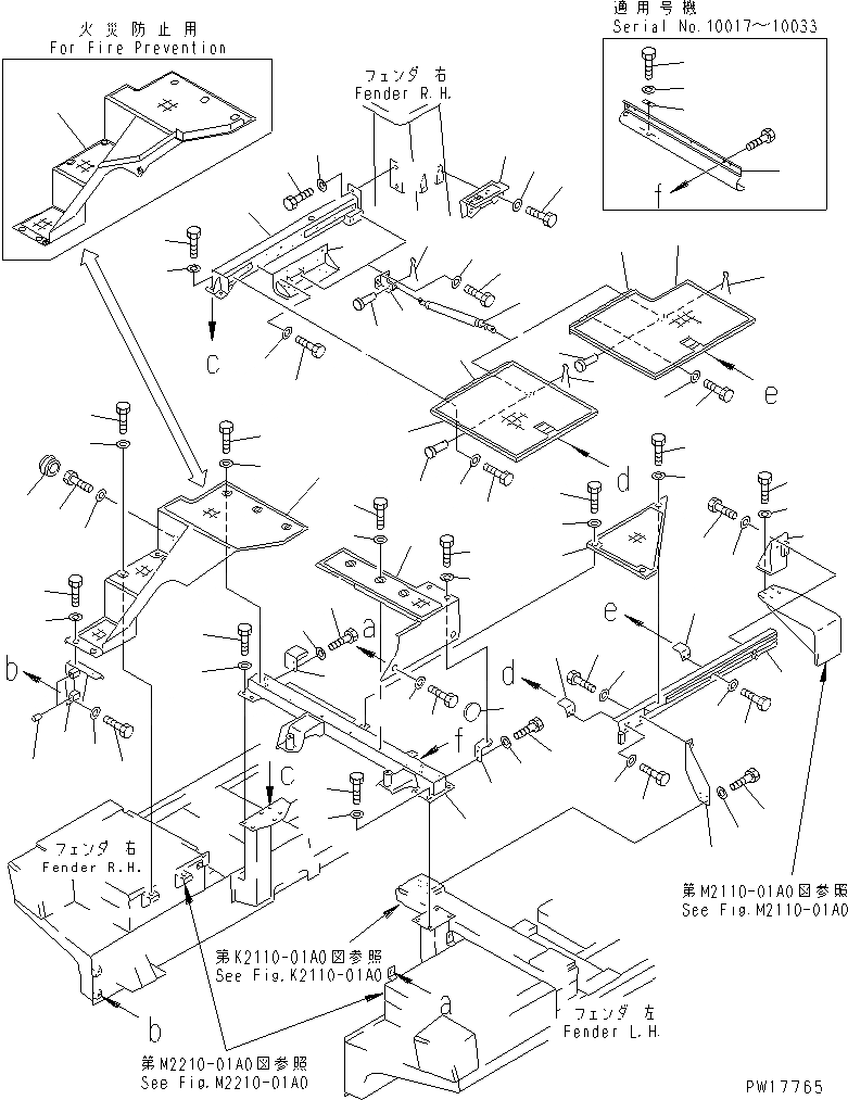
Запчасти Komatsu D575A-2 ПОЛ КАБИНЫ(№-) ЧАСТИ КОРПУСА

Схема запчастей Komatsu D575A-2 - ПОЛ КАБИНЫ(№-) ЧАСТИ КОРПУСА
1
2
2
3
3A
4
5
6
7
8
8
9
9
9
10
10
10
11
11A
12
13
14
14
15
15
15
15
16
16
16
16
17
18
19
20
21
22
23
24
24
25
25
26
27
28
29
29
30
31
31
32
32
33
34
35
36
37
38
39
40
40
41
41
42
43
44
45
46
47
48
49
49
49
50
50
50
51
51
52
52
53
53
54
55
56
57
58
59
60
FIT
1:1
100%

Артикул

Название

Примечание

Количество

1

19M-54-12172

SUPPORT

SN: 10001-10034

1шт.

2

01010-61645

BOLT

SN: 10001-@

8шт.

3

21T-54-16150

WASHER

SN: 10003-@

4шт.

3

0

WASHER

SN: 10001-10002

4шт.

3A

21T-54-16150

WASHER

SN: 10001-@

4шт.

4

19M-54-15210

BRACKET

SN: 10001-@

2шт.

5

01010-81230

BOLT

SN: 10001-@

4шт.

6

01643-31232

WASHER

SN: 10001-@

4шт.

7

19M-54-12262

FLOOR,L.H.

SN: 10001-@

1шт.

8

195-54-42981

CAP

SN: 10001-@

3шт.

9

01010-81225

BOLT

SN: 10001-@

7шт.

10

01643-31232

WASHER

SN: 10001-@

7шт.

11

19M-54-12341

BRACKET

SN: 10001-@

1шт.

11A

198-54-41550

BUSHING

SN: 10001-@

2шт.

12

01010-81225

BOLT

SN: 10001-@

2шт.

13

01643-31232

WASHER

SN: 10001-@

2шт.

14

19M-54-12253

COVER

SN: 10001-@

1шт.

14

19M-54-16610

COVER,(FOR FIRE PREVENTION)

SN: 10018-@

1шт.

15

01010-81225

BOLT

SN: 10001-@

8шт.

16

01643-31232

WASHER

SN: 10001-@

8шт.

17

19M-54-15110

BRACKET

SN: 10001-@

1шт.

18

01010-81225

BOLT

SN: 10001-@

4шт.

19

01643-31232

WASHER

SN: 10001-@

4шт.

20

19M-54-15120

BRACKET

SN: 10001-@

1шт.

21

01010-81235

BOLT

SN: 10001-@

4шт.

22

01643-31232

WASHER

SN: 10001-@

4шт.

23

19M-54-15130

BRACKET

SN: 10001-@

1шт.

24

01010-81230

BOLT

SN: 10001-@

4шт.

25

01643-31232

WASHER

SN: 10001-@

4шт.

26

19M-54-15220

BRACKET

SN: 10001-10034

1шт.

27

01010-61440

BOLT

SN: 10001-@

2шт.

28

01010-61435

BOLT

SN: 10001-@

2шт.

29

01643-31445

WASHER

SN: 10001-@

4шт.

30

19M-54-15140

FLOOR,L.H.

SN: 10001-10034

1шт.

31

01010-81225

BOLT

SN: 10001-@

3шт.

32

01643-31232

WASHER

SN: 10001-@

3шт.

33

19M-54-15270

BRACKET,R.H.

SN: 10001-@

1шт.

34

01010-81225

BOLT

SN: 10001-@

2шт.

35

01643-31232

WASHER

SN: 10001-@

2шт.

36

19M-54-15240

FLOOR,R.H.

SN: 10001-@

1шт.

37

19M-54-15250

HINGE (WELDED)

SN: 10001-@

1шт.

38

19M-54-12292

FLOOR,R.H.

SN: 10001-@

1шт.

39

19M-54-15250

HINGE (WELDED)

SN: 10001-@

1шт.

40

01010-81230

BOLT

SN: 10001-@

8шт.

41

01643-31232

WASHER

SN: 10001-@

8шт.

42

19M-54-15230

BRACKET

SN: 10001-10034

1шт.

43

01010-81230

BOLT

SN: 10001-@

3шт.

44

01643-31232

WASHER

SN: 10001-@

3шт.

45

19M-54-12271

BRACKET

SN: 10001-@

2шт.

46

01010-81230

BOLT

SN: 10001-@

4шт.

47

01643-31232

WASHER

SN: 10001-@

4шт.

48

198-54-45460

CYLINDER

SN: 10001-@

2шт.

49

04205-10825

PIN

SN: 10001-@

4шт.

50

04050-12012

PIN,COTTER

SN: 10001-@

4шт.

51

19M-54-15261

PLATE

SN: 10001-@

2шт.

52

01010-81025

BOLT

SN: 10001-@

4шт.

53

01643-31032

WASHER

SN: 10001-@

4шт.

54

19M-54-15280

BRACKET

SN: 10001-@

1шт.

55

01010-81220

BOLT

SN: 10001-@

4шт.

56

01643-31232

WASHER

SN: 10001-@

4шт.

57

19M-01-12261

PLATE

SN: 10017-10033

1шт.

58

19M-01-12270

PLATE

SN: 10017-10033

4шт.

59

01010-81020

BOLT

SN: 10017-10033

3шт.

59

01010-81030

BOLT

SN: 10017-10033

1шт.

60

01643-31032

WASHER

SN: 10017-10033

4шт.

Выбрано товаров: 0