Запчасти Komatsu D575A-2 FIRE DEFENSE COVER(№-) ЧАСТИ КОРПУСА

Схема запчастей Komatsu D575A-2 - FIRE DEFENSE COVER(№-) ЧАСТИ КОРПУСА
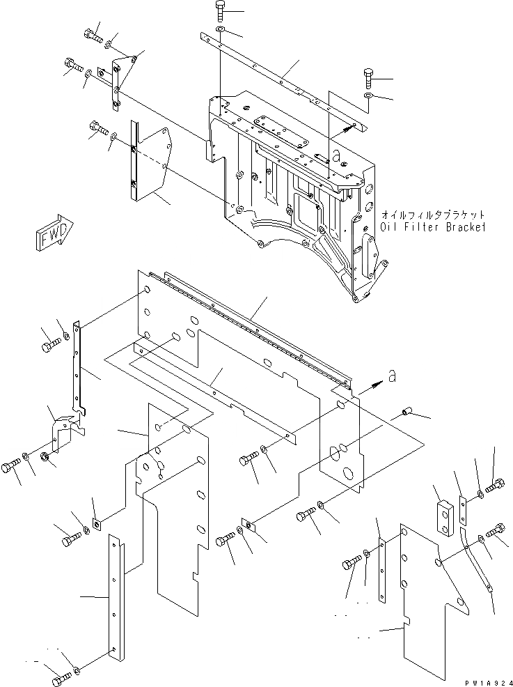
1
2
3
4
5
6
7
8
9
10
11
12
13
14
15
16
17
18
19
20
21
22
23
24
25
26
27
28
29
30
31
32
33
34
35
36
37
38
39
40
41
42
43
44
45
46
47
48
FIT
1:1
100%

Артикул

Название

Примечание

Количество

1

19M-01-32370

BRACKET

SN: 10043-UP

1шт.

2

01010-81225

BOLT

SN: 10043-UP

3шт.

3

01643-31232

WASHER

SN: 10043-UP

3шт.

4

19M-01-32480

BRACKET

SN: 10043-UP

1шт.

5

01010-81230

BOLT

SN: 10043-UP

4шт.

6

01643-31232

WASHER

SN: 10043-UP

4шт.

7

08037-02512

GROMMET

SN: 10043-UP

1шт.

8

19M-01-32390

PLATE

SN: 10043-UP

1шт.

9

01010-81230

BOLT

SN: 10043-UP

2шт.

10

01643-31232

WASHER

SN: 10043-UP

2шт.

11

19M-01-32410

BRACKET

SN: 10043-UP

1шт.

12

01010-81230

BOLT

SN: 10043-UP

4шт.

13

01643-31232

WASHER

SN: 10043-UP

4шт.

14

19M-01-32450

BRACKET

SN: 10043-UP

1шт.

15

01010-81235

BOLT

SN: 10035-UP

1шт.

16

01010-81035

BOLT

SN: 10043-UP

1шт.

17

01643-31232

WASHER

SN: 10035-UP

1шт.

18

01643-31032

WASHER

SN: 10035-UP

1шт.

19

19M-01-32460

BRACKET

SN: 10043-UP

1шт.

20

01010-81630

BOLT

SN: 10035-UP

3шт.

21

01643-31645

WASHER

SN: 10035-UP

3шт.

22

19M-01-32490

BRACKET

SN: 10043-UP

1шт.

23

01010-81445

BOLT

SN: 10035-UP

3шт.

24

01643-31445

WASHER

SN: 10035-UP

3шт.

25

01010-81020

BOLT

SN: 10035-UP

2шт.

26

01643-31032

WASHER

SN: 10035-UP

2шт.

27

19M-01-32510

COVER

SN: 10043-UP

1шт.

28

01010-81220

BOLT

SN: 10043-UP

5шт.

29

01643-31232

WASHER

SN: 10043-UP

5шт.

30

19M-01-32521

RUBBER

SN: 10043-UP

1шт.

31

19M-01-32720

PLATE

SN: 10043-UP

1шт.

32

01010-81230

BOLT

SN: 10043-UP

1шт.

33

01643-31232

WASHER

SN: 10043-UP

1шт.

34

19M-01-32750

RUBBER

SN: 10043-UP

1шт.

35

19M-01-33551

PLATE

SN: 10043-UP

1шт.

36

01010-81230

BOLT

SN: 10043-UP

3шт.

37

01643-31232

WASHER

SN: 10043-UP

3шт.

38

19M-01-33571

PLATE

SN: 10043-UP

1шт.

39

01010-81225

BOLT

SN: 10043-UP

2шт.

40

01643-31232

WASHER

SN: 10043-UP

2шт.

41

19M-01-33580

PLATE

SN: 10043-UP

1шт.

42

01010-81265

BOLT

SN: 10043-UP

1шт.

43

01643-31232

WASHER

SN: 10043-UP

1шт.

44

20Y-03-11220

COLLAR

SN: 10043-UP

1шт.

45

19M-01-33610

SHEET

SN: 10043-UP

1шт.

46

19M-01-33620

PLATE

SN: 10043-UP

1шт.

47

01010-81225

BOLT

SN: 10043-UP

2шт.

48

01643-31232

WASHER

SN: 10043-UP

2шт.

Выбрано товаров: 48