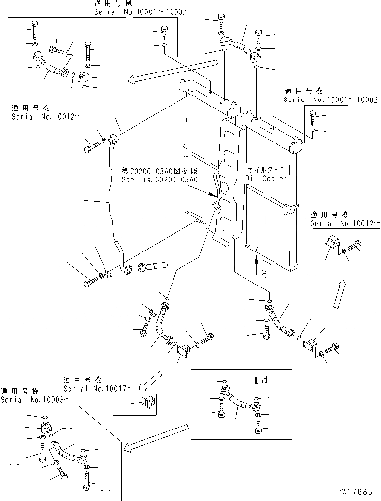
Запчасти Komatsu D575A-2 ЛИНИИ МАСЛООХЛАДИТЕЛЯ (/)(№-) СИСТЕМА ОХЛАЖДЕНИЯ

Схема запчастей Komatsu D575A-2 - ЛИНИИ МАСЛООХЛАДИТЕЛЯ (/)(№-) СИСТЕМА ОХЛАЖДЕНИЯ
1
2
3
4
5
6
7
8
8
8A
8B
8C
9
9
10
10
10
10
10
10
11
11
11
11
11
11
12
12
12
12
12
12
12A
13
13
14
14
15
16
16
17
18
19
20
21
21
21
22
23
24
24
25
25
26
26
26
27
27
27
28
28
29
30
31
32
33
34
34
34
FIT
1:1
100%

Артикул

Название

Примечание

Количество

1

19M-03-12161

TUBE

SN: 10034-10042

1шт.

1

19M-03-12160

TUBE

SN: 10001-10033

1шт.

2

07000-23050

O-RING

SN: 10001-10042

1шт.

3

01010-81265

BOLT

SN: 10001-@

2шт.

4

01643-31232

WASHER

SN: 10001-@

2шт.

5

19M-03-11570

CLAMP

SN: 10001-@

1шт.

6

01010-81040

BOLT

SN: 10001-@

2шт.

7

01643-31032

WASHER

SN: 10001-@

2шт.

8

19M-03-11521

HOSE

SN: 10017-10042

1шт.

8

19M-03-11520

HOSE

SN: 10001-10011

1шт.

8A

07000-23048

O-RING

SN: 10017-10042

1шт.

8B

01010-81240

BOLT

SN: 10017-10042

2шт.

8C

01643-31232

WASHER

SN: 10017-10042

2шт.

9

19M-03-12191

HOSE

SN: 10003-10042

1шт.

9

19M-03-12190

HOSE

SN: 10001-10002

1шт.

10

07000-23045

O-RING

SN: 10003-10042

2шт.

10

07000-23045

O-RING

SN: 10001-10002

4шт.

11

01010-81275

BOLT

SN: 10017-10042

4шт.

11

01010-81265

BOLT

SN: 10003-10011

4шт.

11

01010-81265

BOLT

SN: 10001-10002

8шт.

12

01643-31232

WASHER

SN: 10003-10042

4шт.

12

01643-31232

WASHER

SN: 10001-10002

8шт.

12A

19M-03-12350

ELBOW

SN: 10003-10042

1шт.

13

07060-01230

BOLT

SN: 10001-10002

2шт.

14

07002-21232

O-RING

SN: 10001-10002

2шт.

15

07088-41207

HOSE

SN: 10001-10042

1шт.

16

07000-F3038

O-RING

SN: 10026-10042

2шт.

16

0

O-RING

SN: 10001-10025

2шт.

17

07371-31255

FLANGE

SN: 10001-10042

4шт.

18

07372-21035

BOLT

SN: 10001-10042

8шт.

19

01643-51032

WASHER

SN: 10001-10042

8шт.

20

19M-03-12210

HOSE

SN: 10001-10042

1шт.

21

07000-F3038

O-RING

SN: 10026-10042

2шт.

21

0

O-RING

SN: 10001-10025

2шт.

22

01010-81235

BOLT

SN: 10001-10042

4шт.

23

01643-31232

WASHER

SN: 10001-10042

4шт.

24

19M-03-12220

BLOCK

SN: 10001-10042

1шт.

25

19M-03-12390

BLOCK

SN: 10017-10042

1шт.

25

19M-03-12230

BLOCK

SN: 10001-10011

1шт.

26

01010-81225

BOLT

SN: 10017-10042

7шт.

26

01010-81225

BOLT

SN: 10001-10011

8шт.

27

01643-31232

WASHER

SN: 10017-10042

7шт.

27

01643-31232

WASHER

SN: 10001-10011

8шт.

28

07000-23045

O-RING

SN: 10003-10042

2шт.

29

07000-23048

O-RING

SN: 10003-10042

1шт.

30

19M-03-12330

ELBOW

SN: 10003-10042

1шт.

31

01010-81275

BOLT

SN: 10003-10042

2шт.

32

01010-81240

BOLT

SN: 10003-10042

2шт.

33

01010-81285

BOLT

SN: 10003-10042

2шт.

34

01643-31232

WASHER

SN: 10003-10042

6шт.

Выбрано товаров: 50