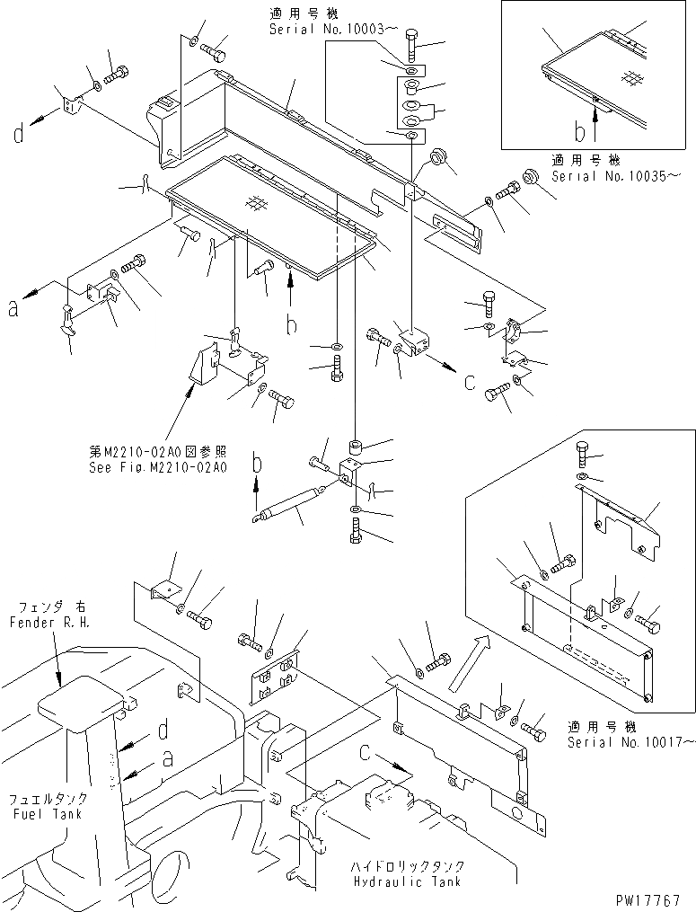
Запчасти Komatsu D575A-2 ЗАДН. КРЫШКА(№-) ЧАСТИ КОРПУСА

Схема запчастей Komatsu D575A-2 - ЗАДН. КРЫШКА(№-) ЧАСТИ КОРПУСА
1
2
3
4
4
5
5
6
7
8
9
10
11
11
12
12
13
13
14
14
15
15
16
17
18
19
20
21
22
23
23
24
24
25
25
26
26
27
27
28
28
29
30
31
31
32
32
33
34
35
36
36
37
37
38
38
39
39A
40
41
42
43
44
44
45
45
46
47
48
49
FIT
1:1
100%

Артикул

Название

Примечание

Количество

1

19M-54-15660

COVER

SN: 10001-@

1шт.

2

01010-81225

BOLT

SN: 10001-@

4шт.

3

01643-31232

WASHER

SN: 10001-@

4шт.

4

19M-54-12312

FLOOR

SN: 10001-@

1шт.

5

19M-54-12350

HINGE (WELDED)

SN: 10001-@

1шт.

6

19M-54-12322

COVER

SN: 10001-10042

1шт.

|6

19M-54-16560

COVER

SN: 10017-10017

1шт.

7

01010-81225

BOLT

SN: 10001-@

5шт.

8

01643-31232

WASHER

SN: 10001-@

5шт.

9

19M-54-15640

BRACKET

SN: 10001-@

1шт.

10

19M-54-15320

BRACKET

SN: 10001-@

1шт.

11

01010-81225

BOLT

SN: 10001-@

4шт.

12

01643-31232

WASHER

SN: 10001-@

4шт.

13

09450-00000

CATCH

SN: 10001-@

2шт.

14

09450-00002

PIN

SN: 10001-@

2шт.

15

04050-11610

PIN,COTTER

SN: 10001-@

2шт.

16

19M-54-15290

BRACKET

SN: 10001-@

2шт.

17

195-33-11220

SPACER

SN: 10001-@

4шт.

18

01010-81255

BOLT

SN: 10001-@

4шт.

19

01643-31232

WASHER

SN: 10001-@

4шт.

20

198-54-45460

CYLINDER

SN: 10001-@

2шт.

21

04205-10825

PIN

SN: 10001-@

4шт.

22

04050-12012

PIN,COTTER

SN: 10001-@

4шт.

23

19M-54-12920

BRACKET

SN: 10001-@

1шт.

24

01010-61430

BOLT

SN: 10001-@

1шт.

25

01643-31445

WASHER

SN: 10001-@

1шт.

26

19M-54-12332

COVER

SN: 10017-10042

1шт.

|26

19M-54-12331

COVER

SN: 10001-10011

1шт.

27

01010-81230

BOLT

SN: 10017-@

4шт.

|27

01010-81230

BOLT

SN: 10001-10011

6шт.

28

01643-31232

WASHER

SN: 10017-@

4шт.

|28

01643-31232

WASHER

SN: 10001-10011

6шт.

29

19M-54-15760

BRACKET

SN: 10001-@

2шт.

30

19M-54-15770

BRACKET

SN: 10001-@

2шт.

31

01010-81225

BOLT

SN: 10001-@

8шт.

32

01643-31232

WASHER

SN: 10001-@

8шт.

33

01010-81230

BOLT

SN: 10001-@

4шт.

34

01643-31232

WASHER

SN: 10001-@

4шт.

35

198-54-41941

CAP

SN: 10001-@

4шт.

36

19M-54-15850

BRACKET

SN: 10001-@

2шт.

37

01010-81225

BOLT

SN: 10003-@

5шт.

|37

01010-81225

BOLT

SN: 10001-10002

4шт.

38

01643-31232

WASHER

SN: 10003-@

5шт.

|38

01643-31232

WASHER

SN: 10001-10002

4шт.

39

01010-81245

BOLT

SN: 10003-@

1шт.

|39

01010-81235

BOLT

SN: 10001-10002

2шт.

39A

01643-31232

WASHER

SN: 10003-@

1шт.

40

195-54-15880

COLLAR

SN: 10003-@

1шт.

|40

175-03-32580

COLLAR

SN: 10001-10002

2шт.

41

175-54-27350

SPRING

SN: 10003-@

2шт.

|41

175-54-27350

SPRING

SN: 10001-10002

4шт.

42

175-54-46691

CAP

SN: 10001-@

2шт.

43

19M-54-15840

BRACKET

SN: 10001-@

1шт.

44

01010-81225

BOLT

SN: 10001-@

3шт.

45

01643-31232

WASHER

SN: 10001-@

3шт.

46

154-30-51460

WASHER

SN: 10003-@

1шт.

47

19M-54-13610

COVER

SN: 10017-10042

1шт.

48

01010-81230

BOLT

SN: 10017-10042

5шт.

49

01643-31232

WASHER

SN: 10017-10042

5шт.

Выбрано товаров: 59