Запчасти Komatsu D575A-3-M ПОЛ КАБИНЫ (ПЕРЕДН.)(С РЫХЛИТЕЛЕМ)(№-) ЧАСТИ КОРПУСА

Схема запчастей Komatsu D575A-3-M - ПОЛ КАБИНЫ (ПЕРЕДН.)(С РЫХЛИТЕЛЕМ)(№-) ЧАСТИ КОРПУСА
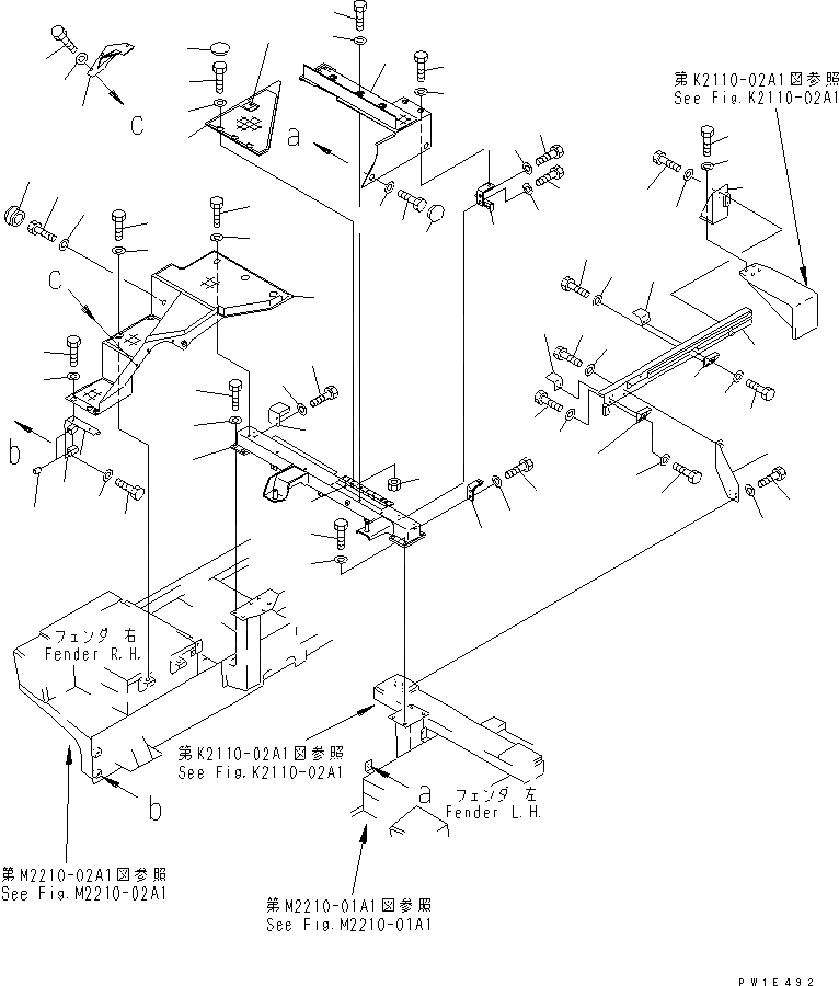
1
2
3
3
4
4
5
6
6
6
7
7
7
8
9
10
10
11
11
11
12
13
14
15
15
15
15
16
16
16
16
17
18
19
20
21
22
23
24
25
26
27
28
29
29
30
30
31
31
31
31
32
32
32
32
33
33
34
34
35
36
37
38
39
40
41
42
43
44
45
46
FIT
1:1
100%

Артикул

Название

Примечание

Количество

1

19M-54-32170

SUPPORT

SN: 10105-UP

1шт.

2

19M-54-15150

HINGE (WELDED)

SN: 10105-UP

1шт.

3

01010-81645

BOLT

SN: 10105-UP

8шт.

4

21T-54-16150

WASHER

SN: 10105-UP

8шт.

5

19M-54-12263

FLOOR,L.H.

SN: 10105-UP

1шт.

6

01010-81225

BOLT

SN: 10105-UP

7шт.

7

01643-31232

WASHER

SN: 10105-UP

7шт.

8

195-54-42981

CAP

SN: 10105-UP

2шт.

9

19M-54-15210

BRACKET

SN: 10105-UP

1шт.

10

01010-81230

BOLT

SN: 10105-UP

2шт.

11

01643-31232

WASHER

SN: 10105-UP

4шт.

12

19M-01-13120

BRACKET

SN: 10105-UP

1шт.

13

01010-81250

BOLT

SN: 10105-UP

2шт.

14

19M-54-16611

COVER

SN: 10105-UP

1шт.

15

01010-81225

BOLT

SN: 10105-UP

8шт.

16

01643-31232

WASHER

SN: 10105-UP

8шт.

17

195-54-42981

CAP

SN: 10105-UP

1шт.

18

19M-54-16770

COVER

SN: 10105-UP

1шт.

19

01010-81225

BOLT

SN: 10105-UP

3шт.

20

01643-31232

WASHER

SN: 10105-UP

3шт.

21

19M-54-12342

BRACKET

SN: 10105-UP

1шт.

22

198-54-41550

BUSHING

SN: 10105-UP

2шт.

23

01010-81225

BOLT

SN: 10105-UP

2шт.

24

01643-31232

WASHER

SN: 10105-UP

2шт.

25

19M-54-15270

BRACKET,R.H.

SN: 10105-UP

1шт.

26

01010-81225

BOLT

SN: 10105-UP

2шт.

27

01643-31232

WASHER

SN: 10105-UP

2шт.

28

19M-54-15130

BRACKET

SN: 10105-UP

1шт.

29

19M-54-15261

PLATE

SN: 10105-UP

2шт.

30

19M-54-15190

BRACKET

SN: 10105-UP

2шт.

31

01010-81025

BOLT

SN: 10105-UP

6шт.

32

01643-31032

WASHER

SN: 10105-UP

6шт.

33

01010-81230

BOLT

SN: 10105-UP

4шт.

34

01643-31232

WASHER

SN: 10105-UP

4шт.

35

19M-54-15110

BRACKET

SN: 10105-UP

1шт.

36

01010-81225

BOLT

SN: 10105-UP

4шт.

37

01643-31232

WASHER

SN: 10105-UP

4шт.

38

19M-54-15120

BRACKET

SN: 10105-UP

1шт.

39

01010-81235

BOLT

SN: 10105-UP

4шт.

40

01643-31232

WASHER

SN: 10105-UP

4шт.

41

19M-54-15141

FLOOR

SN: 10105-UP

1шт.

42

19M-54-15700

LEVER ASS'Y (WELDED)

SN: 10105-UP

1шт.

43

01010-81225

BOLT

SN: 10105-UP

3шт.

44

01643-31232

WASHER

SN: 10105-UP

3шт.

45

01580-11210

NUT

SN: 10105-UP

3шт.

46

195-54-42981

CAP

SN: 10105-UP

3шт.

Выбрано товаров: 46