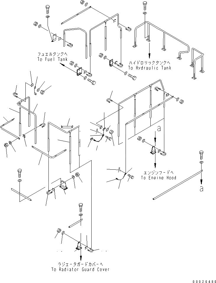
Запчасти Komatsu D575A-3-M ПОРУЧНИ (/) ЧАСТИ КОРПУСА

Схема запчастей Komatsu D575A-3-M - ПОРУЧНИ (/) ЧАСТИ КОРПУСА
1
2
2
3
3
4
5
6
7
8
8
9
10
11
12
13
14
15
15
16
16
17
17
18
18
19
19
20
20
20
21
21
22
22
23
23
24
25
26
27
FIT
1:1
100%

Артикул

Название

Примечание

Количество

1

19M-54-13630

HAND RAIL

SN: 10101-UP

1шт.

2

19M-54-13640

HAND RAIL

SN: 10101-UP

2шт.

3

19M-54-13670

PLATE

SN: 10101-UP

2шт.

4

07283-32746

CLIP

SN: 10101-UP

6шт.

5

07283-52737

SEAT

SN: 10101-UP

6шт.

6

01599-01011

NUT

SN: 10101-UP

12шт.

7

01643-31032

WASHER

SN: 10101-UP

12шт.

8

19M-54-13680

PLATE

SN: 10101-UP

2шт.

9

07283-32746

CLIP

SN: 10101-UP

4шт.

10

07283-52737

SEAT

SN: 10101-UP

4шт.

11

01599-01011

NUT

SN: 10101-UP

8шт.

12

01643-31032

WASHER

SN: 10101-UP

8шт.

13

19M-54-13650

BRACKET

SN: 10101-UP

1шт.

14

19M-54-13660

BRACKET

SN: 10101-UP

4шт.

15

07283-33450

CLIP

SN: 10101-UP

12шт.

16

07283-53444

SEAT

SN: 10101-UP

12шт.

17

01599-01011

NUT

SN: 10101-UP

24шт.

18

01643-31232

WASHER

SN: 10101-UP

24шт.

19

19M-54-13730

ROPE ASS'Y

SN: 10101-UP

2шт.

20

196-06-23180

SHACKLE

SN: 10101-UP

4шт.

21

01012-51040

BOLT

SN: 10101-UP

4шт.

22

04050-12018

PIN

SN: 10101-UP

4шт.

23

19M-54-13720

PLATE

SN: 10101-UP

2шт.

24

07283-32746

CLIP

SN: 10101-UP

2шт.

25

07283-52737

SEAT

SN: 10101-UP

2шт.

26

01599-01011

NUT

SN: 10101-UP

4шт.

27

01643-31032

WASHER

SN: 10101-UP

4шт.

Выбрано товаров: 27