Запчасти Komatsu D575A-3 КОНДИЦ. ВОЗДУХА И ДАТЧИК ПРОВОДКА(№-) КАБИНА ОПЕРАТОРА И СИСТЕМА УПРАВЛЕНИЯ

Схема запчастей Komatsu D575A-3 - КОНДИЦ. ВОЗДУХА И ДАТЧИК ПРОВОДКА(№-) КАБИНА ОПЕРАТОРА И СИСТЕМА УПРАВЛЕНИЯ
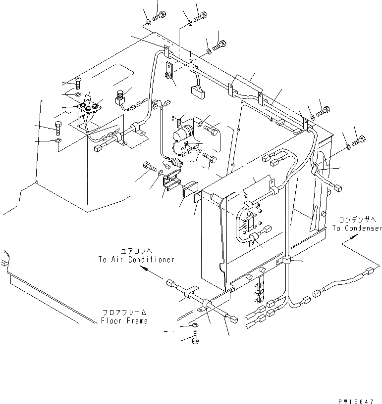
1
2
3
4
5
5
6
7
8
9
10
11
12
13
14
15
15
15
16
16
16
17
17
18
19
20
21
22
23
24
25
26
27
28
29
30
31
32
33
34
35
36
37
38
39
FIT
1:1
100%

Артикул

Название

Примечание

Количество

1

19M-06-32520

WIRING HARNESS

SN: 10105-UP

1шт.

2

04434-52712

CLIP

SN: 10105-UP

2шт.

3

04434-51712

CLIP

SN: 10105-UP

3шт.

4

04434-51412

CLIP

SN: 10105-UP

1шт.

5

04434-52712

CLIP

SN: 10105-UP

4шт.

6

01010-81220

BOLT

SN: 10105-UP

4шт.

7

01643-31232

WASHER

SN: 10105-UP

4шт.

8

04434-51412

CLIP

SN: 10105-UP

1шт.

9

01010-81225

BOLT

SN: 10105-UP

1шт.

10

01643-31232

WASHER

SN: 10105-UP

1шт.

11

154-Z11-5340

BRACKET

SN: 10105-UP

1шт.

12

01010-81225

BOLT

SN: 10105-UP

1шт.

13

01643-31232

WASHER

SN: 10105-UP

1шт.

14

04434-51412

CLIP

SN: 10105-UP

2шт.

15

01010-81220

BOLT

SN: 10105-UP

2шт.

16

01643-31232

WASHER

SN: 10105-UP

2шт.

17

04434-51412

CLIP

SN: 10105-UP

2шт.

18

19M-06-32920

WIRING HARNESS

SN: 10105-UP

1шт.

19

04434-51012

CLIP

SN: 10105-UP

3шт.

20

01010-81220

BOLT

SN: 10105-UP

3шт.

21

01643-31232

WASHER

SN: 10105-UP

3шт.

22

04434-51012

CLIP

SN: 10105-UP

3шт.

23

198-Z11-2630

CONVERTER

SN: 10105-UP

1шт.

24

198-Z11-3920

SHEET

SN: 10105-UP

1шт.

25

19M-06-32590

COVER

SN: 10105-UP

1шт.

26

01010-80820

BOLT

SN: 10105-UP

4шт.

27

01643-30823

WASHER

SN: 10105-UP

4шт.

28

198-06-56570

BUZZER

SN: 10105-UP

1шт.

29

01010-80616

BOLT

SN: 10105-UP

1шт.

30

01643-30623

WASHER

SN: 10105-UP

1шт.

31

08193-21012

CLIP

SN: 10105-UP

1шт.

32

01010-81220

BOLT

SN: 10105-UP

1шт.

33

01643-31232

WASHER

SN: 10105-UP

1шт.

34

19M-06-31270

SWITCH

SN: 10105-UP

1шт.

35

19M-06-31262

LAMP

SN: 10105-UP

1шт.

36

08147-42400

LAMP

SN: 10105-UP

1шт.

|$53

08111-22430

BULB, 3W,3W

SN: 10105-UP

1шт.

37

08147-42402

LAMP ASS'Y

SN: 10105-UP

2шт.

|$55

08111-22430

BULB, 3W,3W

SN: 10105-UP

2шт.

38

01245-00616

SCREW

SN: 10105-UP

4шт.

39

01641-50608

WASHER

SN: 10105-UP

4шт.

Выбрано товаров: 41