Запчасти Komatsu D575A-3 ПОЛ КАБИНЫ (ЗАДН.) ЧАСТИ КОРПУСА

Схема запчастей Komatsu D575A-3 - ПОЛ КАБИНЫ (ЗАДН.) ЧАСТИ КОРПУСА
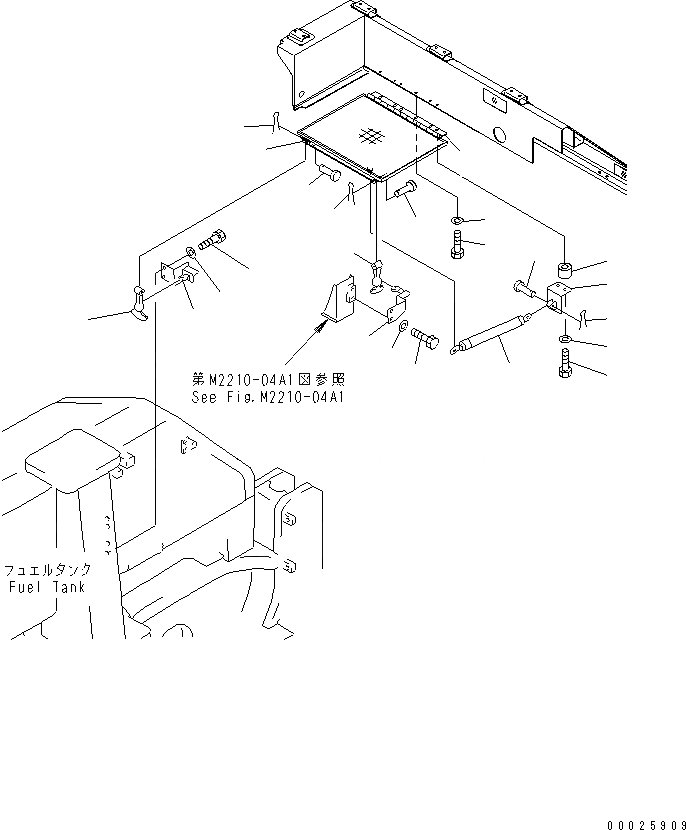
1
2
3
4
5
6
7
8
9
10
11
12
12
13
13
14
14
15
16
16A
16B
17
18
FIT
1:1
100%

Артикул

Название

Примечание

Количество

1

19M-54-32311

COVER

SN: 10101-UP

1шт.

2

19M-54-32350

HINGE (WELDED)

SN: 10101-UP

1шт.

3

01010-81225

BOLT

SN: 10101-UP

4шт.

4

01643-31232

WASHER

SN: 10101-UP

4шт.

5

19M-54-15290

BRACKET

SN: 10101-UP

1шт.

6

195-33-11220

SPACER

SN: 10101-UP

2шт.

7

01010-81255

BOLT

SN: 10101-UP

2шт.

8

01643-31232

WASHER

SN: 10101-UP

2шт.

9

198-54-45460

CYLINDER

SN: 10101-UP

1шт.

10

04205-10825

PIN

SN: 10101-UP

2шт.

11

04050-12012

PIN

SN: 10101-UP

2шт.

12

09450-00000

CATCH

SN: 10101-UP

2шт.

13

09450-00002

PIN

SN: 10101-UP

2шт.

14

04050-11610

PIN

SN: 10101-UP

2шт.

15

19M-54-15640

BRACKET

SN: 10101-UP

1шт.

16

19M-54-15320

BRACKET

SN: 10101-UP

1шт.

16A

01010-81225

BOLT

SN: 10101-UP

2шт.

16B

01643-31232

WASHER

SN: 10101-UP

2шт.

17

01010-81225

BOLT

SN: 10101-UP

2шт.

18

01643-31232

WASHER

SN: 10101-UP

2шт.

Выбрано товаров: 20