Запчасти Komatsu D61E-12 КРЫЛО (ЛЕВ.) ЧАСТИ КОРПУСА

Схема запчастей Komatsu D61E-12 - КРЫЛО (ЛЕВ.) ЧАСТИ КОРПУСА
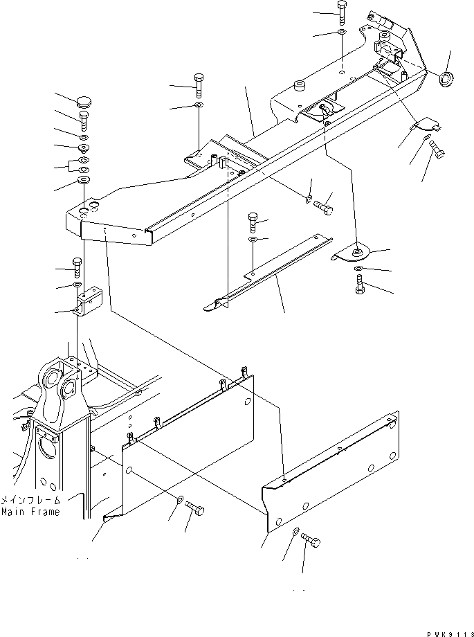
1
2
3
4
5
6
7
8
9
9
10
10
11
12
13
14
15
16
17
18
19
19
20
20
21
22
23
24
25
25
26
26
FIT
1:1
100%

Артикул

Название

Примечание

Количество

1

134-54-63113

FENDER,L.H.

SN: 1165-UP

1шт.

1

134-54-63112

FENDER,L.H.

SN: 1001-1164

1шт.

2

134-54-63131

COVER

SN: 1001-UP

1шт.

3

01010-81225

BOLT

SN: 1001-UP

1шт.

4

01643-31232

WASHER

SN: 1001-UP

1шт.

5

134-54-63271

COVER

SN: 1001-UP

1шт.

6

01010-81225

BOLT

SN: 1001-UP

1шт.

7

01643-31232

WASHER

SN: 1001-UP

1шт.

8

09415-05022

CAP

SN: 1001-UP

1шт.

9

01010-82050

BOLT

SN: 1001-UP

4шт.

10

01643-32060

WASHER

SN: 1001-UP

4шт.

11

134-54-62541

SPACER

SN: 1001-UP

2шт.

12

134-54-62560

SPACER

SN: 1064-UP

2шт.

12

134-54-62550

SPACER

SN: 1001-1063

2шт.

13

175-54-27350

SPRING

SN: 1001-UP

4шт.

14

01010-81245

BOLT

SN: 1001-UP

2шт.

15

01643-31232

WASHER

SN: 1001-UP

2шт.

16

09415-03614

CAP

SN: 1001-UP

2шт.

17

134-54-63221

COVER,L.H.

SN: 1001-UP

1шт.

18

134-54-63240

COVER

SN: 1001-UP

1шт.

19

01010-81225

BOLT

SN: 1001-UP

13шт.

20

01643-31232

WASHER

SN: 1001-UP

13шт.

21

134-54-62532

BRACKET

SN: 1001-UP

1шт.

22

01010-81235

BOLT

SN: 1001-UP

2шт.

23

01643-31232

WASHER

SN: 1001-UP

2шт.

24

134-21-61281

COVER,L.H.

SN: 1001-UP

1шт.

25

01010-81225

BOLT

SN: 1001-UP

3шт.

26

01643-31232

WASHER

SN: 1001-UP

3шт.

Выбрано товаров: 28