Запчасти Komatsu D61PX-12 СИСТЕМА ROPS КАБИНА ОПЕРАТОРА И СИСТЕМА УПРАВЛЕНИЯ

Схема запчастей Komatsu D61PX-12 - СИСТЕМА ROPS КАБИНА ОПЕРАТОРА И СИСТЕМА УПРАВЛЕНИЯ
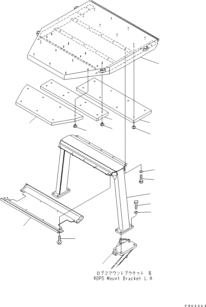
1
2
3
4
5
6
7
8
9
10
11
12
12
12
FIT
1:1
100%

Артикул

Название

Примечание

Количество

1

134-X78-1113

GUARD

SN: 1197-UP

1шт.

1

134-X78-1112

GUARD

SN: 1001-1196

1шт.

2

01010-82465

BOLT

SN: 1197-UP

8шт.

2

01010-82460

BOLT

SN: 1001-1196

8шт.

3

01643-32460

WASHER

SN: 1001-UP

8шт.

4

134-X78-1151

ROOF

SN: 1001-UP

1шт.

5

134-X78-1182

LINING

SN: 1001-UP

1шт.

6

01439-00820

BOLT

SN: 1001-UP

8шт.

7

01010-81230

BOLT

SN: 1001-UP

10шт.

8

01643-31232

WASHER

SN: 1001-UP

10шт.

9

134-X78-1190

LINING

SN: 1001-UP

1шт.

10

134-X78-1161

LINING

SN: 1001-UP

1шт.

11

134-X78-1171

LINING

SN: 1001-UP

1шт.

12

14X-978-1340

BUTTON

SN: 1001-UP

23шт.

Выбрано товаров: 14