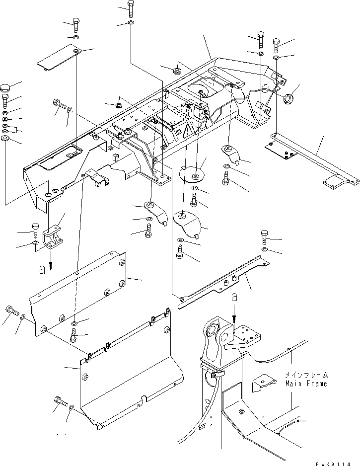
Запчасти Komatsu D61PX-12 КРЫЛО (ПРАВ.) ЧАСТИ КОРПУСА

Схема запчастей Komatsu D61PX-12 - КРЫЛО (ПРАВ.) ЧАСТИ КОРПУСА
1
2
3
4
5
6
7
8
9
10
11
12
13
14
15
16
17
18
19
20
20
21
21
22
23
24
25
26
27
28
29
30
30
30
31
31
31
32
33
34
35
36
36
37
37
38
39
40
FIT
1:1
100%

Артикул

Название

Примечание

Количество

1

134-54-63124

FENDER,R.H.

SN: 1197-UP

1шт.

|1

134-54-63123

FENDER,R.H.

SN: 1001-1196

1шт.

2

134-54-63131

COVER

SN: 1001-UP

1шт.

3

01010-81225

BOLT

SN: 1001-UP

1шт.

4

01643-31232

WASHER

SN: 1001-UP

1шт.

5

134-54-63141

COVER

SN: 1001-UP

1шт.

6

01010-81225

BOLT

SN: 1001-UP

1шт.

7

01643-31232

WASHER

SN: 1001-UP

1шт.

8

134-54-63181

COVER

SN: 1001-UP

1шт.

9

01010-81225

BOLT

SN: 1001-UP

1шт.

10

01643-31232

WASHER

SN: 1001-UP

1шт.

11

134-54-63281

COVER

SN: 1001-UP

1шт.

12

01010-81225

BOLT

SN: 1001-UP

1шт.

13

01643-31232

WASHER

SN: 1001-UP

1шт.

14

14X-54-13132

COVER

SN: 1001-UP

1шт.

15

01010-81225

BOLT

SN: 1001-UP

1шт.

16

01643-31232

WASHER

SN: 1001-UP

1шт.

17

09415-03614

CAP

SN: 1001-UP

3шт.

18

09415-05022

CAP

SN: 1001-UP

1шт.

19

09415-02512

CAP

SN: 1001-UP

1шт.

20

01010-82050

BOLT

SN: 1001-UP

4шт.

21

01643-32060

WASHER

SN: 1001-UP

4шт.

22

134-54-62541

SPACER

SN: 1001-UP

2шт.

23

134-54-62560

SPACER

SN: 1061-UP

2шт.

|23

134-54-62550

SPACER

SN: 1001-1060

2шт.

24

175-54-27350

SPRING

SN: 1001-UP

4шт.

25

01010-81245

BOLT

SN: 1001-UP

2шт.

26

01643-31232

WASHER

SN: 1001-UP

2шт.

27

09415-03614

CAP

SN: 1001-UP

2шт.

28

134-54-63231

COVER,R.H.

SN: 1001-UP

1шт.

29

134-54-63250

COVER

SN: 1001-UP

1шт.

30

01010-81225

BOLT

SN: 1001-UP

13шт.

31

01643-31232

WASHER

SN: 1001-UP

13шт.

32

134-54-62532

BRACKET

SN: 1001-UP

1шт.

33

01010-81235

BOLT

SN: 1001-UP

2шт.

34

01643-31232

WASHER

SN: 1001-UP

2шт.

35

134-21-61291

COVER,R.H.

SN: 1001-UP

1шт.

36

01010-81225

BOLT

SN: 1001-UP

3шт.

37

01643-31232

WASHER

SN: 1001-UP

3шт.

38

134-54-63152

PLATE

SN: 1001-UP

1шт.

39

01010-81235

BOLT

SN: 1001-UP

4шт.

40

01643-31232

WASHER

SN: 1001-UP

4шт.

Выбрано товаров: 0