Запчасти Komatsu D61PX-12A-W ОСНОВН. КОНСТРУКЦИЯ (УПРАВЛ-Е ПОДАЧ. ТОПЛИВА) КАБИНА ОПЕРАТОРА И СИСТЕМА УПРАВЛЕНИЯ

Схема запчастей Komatsu D61PX-12A-W - ОСНОВН. КОНСТРУКЦИЯ (УПРАВЛ-Е ПОДАЧ. ТОПЛИВА) КАБИНА ОПЕРАТОРА И СИСТЕМА УПРАВЛЕНИЯ
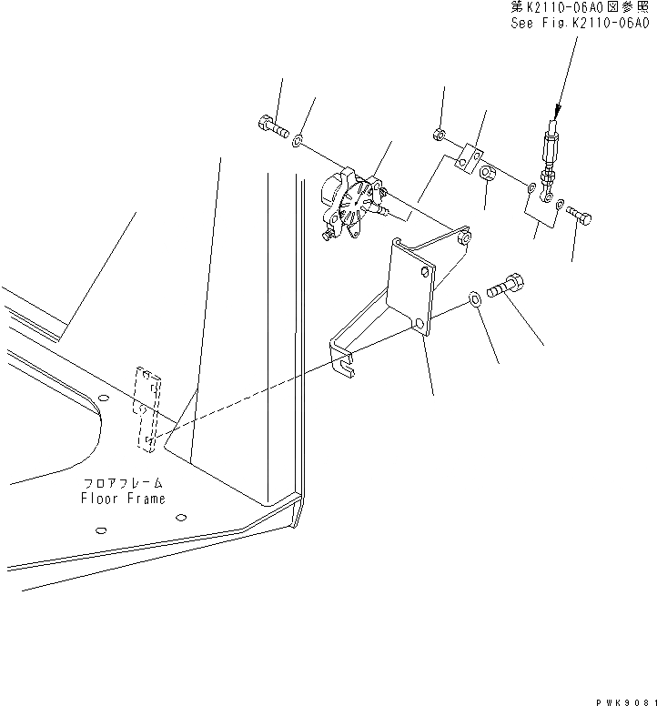
1
2
3
4
5
6
7
8
9
10
11
FIT
1:1
100%

Артикул

Название

Примечание

Количество

1

134-43-68250

BRACKET

SN: B3001-UP

1шт.

2

134-43-66210

LEVER ASS'Y

SN: B3001-UP

1шт.

3

01252-41030

BOLT

SN: B3001-UP

2шт.

4

01643-31032

WASHER

SN: B3001-UP

2шт.

5

124-43-54590

JOINT

SN: B3001-UP

1шт.

6

01582-11008

NUT

SN: B3001-UP

1шт.

7

01010-81220

BOLT

SN: B3001-UP

2шт.

8

01643-31232

WASHER

SN: B3001-UP

2шт.

9

01010-81050

BOLT

SN: B3001-UP

1шт.

10

04254-11032

SPACER

SN: B3001-UP

2шт.

11

01580-11008

NUT

SN: B3001-UP

2шт.

Выбрано товаров: 11