Запчасти Komatsu D61PX-15E0-BW ЗЕРКАЛА ЗАДН. ВИДА(ДЛЯ НАВЕСА) КАБИНА ОПЕРАТОРА И СИСТЕМА УПРАВЛЕНИЯ

Схема запчастей Komatsu D61PX-15E0-BW - ЗЕРКАЛА ЗАДН. ВИДА(ДЛЯ НАВЕСА) КАБИНА ОПЕРАТОРА И СИСТЕМА УПРАВЛЕНИЯ
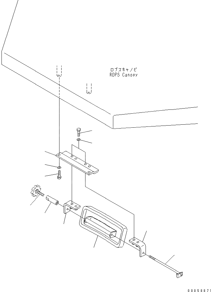
1
2
3
4
5
6
7
8
8
9
10
FIT
1:1
100%

Артикул

Название

Примечание

Количество

1

134-X78-7710

MIRROR

SN: B45001-UP

1шт.

2

134-X78-7720

KNOB

SN: B45001-UP

1шт.

3

134-X78-7790

SEAT

SN: B45001-UP

1шт.

4

134-X78-7780

ROD

SN: B45001-UP

1шт.

5

134-X78-7750

PLATE

SN: B45001-UP

1шт.

6

01010-D1030

BOLT

SN: B45001-UP

2шт.

7

01643-71032

WASHER

SN: B45001-UP

2шт.

8

134-X78-7760

BRACKET

SN: B45001-UP

2шт.

9

01010-D1030

BOLT

SN: B45001-UP

4шт.

10

01643-71032

WASHER

SN: B45001-UP

4шт.

Выбрано товаров: 10