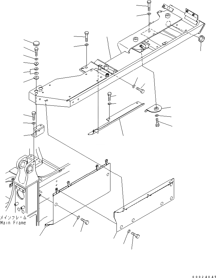
Запчасти Komatsu D61PX-15E0-BW КРЫЛО (ЛЕВ.) ЧАСТИ КОРПУСА

Схема запчастей Komatsu D61PX-15E0-BW - КРЫЛО (ЛЕВ.) ЧАСТИ КОРПУСА
1
2
3
4
5
6
6
7
7
8
9
10
11
12
13
14
15
16
16
17
17
18
19
20
21
22
22
23
23
FIT
1:1
100%

Артикул

Название

Примечание

Количество

1

134-54-73113

FENDER

SN: B46169-UP

1шт.

|1

0

FENDER

SN: B45001-B46168

1шт.

2

134-54-63131

COVER

SN: B45001-UP

1шт.

3

01010-81225

BOLT

SN: B45001-UP

1шт.

4

01643-31232

WASHER

SN: B45001-UP

1шт.

5

09415-05022

CAP

SN: B45001-UP

1шт.

6

01010-82050

BOLT

SN: B45001-UP

4шт.

7

01643-32060

WASHER

SN: B45001-UP

4шт.

8

134-54-62541

SPACER

SN: B45001-UP

2шт.

9

134-54-62560

SPACER

SN: B45001-UP

1шт.

10

175-54-27350

SPRING

SN: B45001-UP

4шт.

11

01010-81245

BOLT

SN: B45001-UP

2шт.

12

01643-31232

WASHER

SN: B45001-UP

2шт.

13

09415-03614

CAP

SN: B45001-UP

2шт.

14

134-54-63221

COVER

SN: B45001-UP

1шт.

15

134-54-63240

COVER

SN: B45001-UP

1шт.

16

01010-81225

BOLT

SN: B45001-UP

13шт.

17

01643-31232

WASHER

SN: B45001-UP

13шт.

18

134-54-62532

BRACKET

SN: B45001-UP

1шт.

19

01010-81235

BOLT

SN: B45001-UP

2шт.

20

01643-31232

WASHER

SN: B45001-UP

2шт.

21

134-21-71281

COVER

SN: B45001-UP

1шт.

22

01010-81225

BOLT

SN: B45001-UP

3шт.

23

01643-31232

WASHER

SN: B45001-UP

3шт.

Выбрано товаров: 24