Запчасти Komatsu D65E-12 ОСНОВН. КОНСТРУКЦИЯ (УПРАВЛ-Е ПОДАЧ. ТОПЛИВА)(№9-) КАБИНА ОПЕРАТОРА И СИСТЕМА УПРАВЛЕНИЯ

Схема запчастей Komatsu D65E-12 - ОСНОВН. КОНСТРУКЦИЯ (УПРАВЛ-Е ПОДАЧ. ТОПЛИВА)(№9-) КАБИНА ОПЕРАТОРА И СИСТЕМА УПРАВЛЕНИЯ
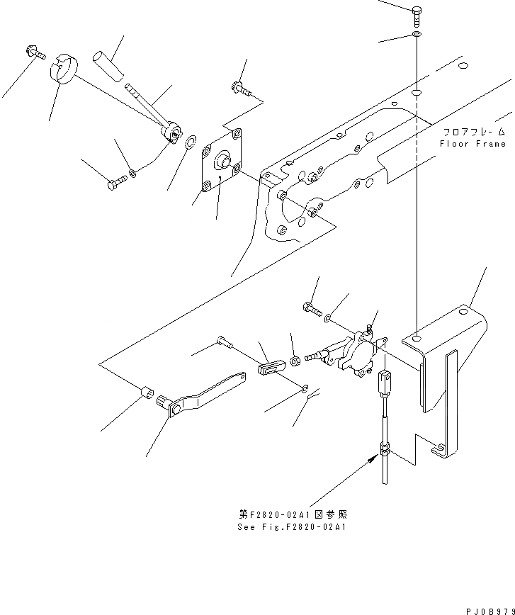
1
2
3
4
5
6
7
8
9
10
11
12
13
14
15
16
17
18
19
20
21
22
23
FIT
1:1
100%

Артикул

Название

Примечание

Количество

1

09304-01240

KNOB

SN: 60942-65000

1шт.

2

14X-43-13373

LEVER

SN: 60942-65000

1шт.

3

01010-80830

BOLT

SN: 60942-65000

1шт.

4

01643-30823

WASHER

SN: 60942-65000

1шт.

5

14X-43-13432

COVER

SN: 60942-65000

1шт.

6

01439-00814

BOLT

SN: 60942-65000

1шт.

7

01640-22032

WASHER

SN: 60942-65000

1шт.

8

14X-43-13440

BRACKET

SN: 60942-65000

1шт.

8

14X-43-13460

BRACKET,(WITHOUT CAB)

SN: 61441-65000

1шт.

8

14X-43-13440

BRACKET,(WITHOUT CAB)

SN: 60942-61440

1шт.

9

14X-43-13450

SHEET

SN: 60942-61440

1шт.

10

06124-02020

BEARING

SN: 60942-65000

1шт.

11

14X-43-13382

LEVER

SN: 60942-65000

1шт.

12

14X-43-13364

BRACKET

SN: 60942-65000

1шт.

13

14X-43-13412

LEVER ASS'Y

SN: 60942-65000

1шт.

14

01252-41025

BOLT

SN: 60942-65000

2шт.

15

01643-31032

WASHER

SN: 60942-65000

2шт.

16

198-43-12430

YOKE

SN: 60942-65000

1шт.

17

01580-10806

NUT

SN: 60942-65000

1шт.

18

01439-01020

BOLT

SN: 60942-65000

4шт.

19

01010-81680

BOLT

SN: 60942-65000

4шт.

20

01643-31645

WASHER

SN: 60942-65000

4шт.

21

04205-10825

PIN

SN: 60942-65000

1шт.

22

04050-12015

PIN,COTTER

SN: 60942-65000

1шт.

23

01641-20812

WASHER

SN: 60942-65000

1шт.

Выбрано товаров: 0