Запчасти Komatsu D65E-12 ХЛАДАГЕНТ ПРЕДПУСКОВ. ПОДОГРЕВ (КРЕПЛЕНИЕ ОБОГРЕВАТЕЛЯ) (ДЛЯ СНГ)(№7-) РАЗНОЕ

Схема запчастей Komatsu D65E-12 - ХЛАДАГЕНТ ПРЕДПУСКОВ. ПОДОГРЕВ (КРЕПЛЕНИЕ ОБОГРЕВАТЕЛЯ) (ДЛЯ СНГ)(№7-) РАЗНОЕ
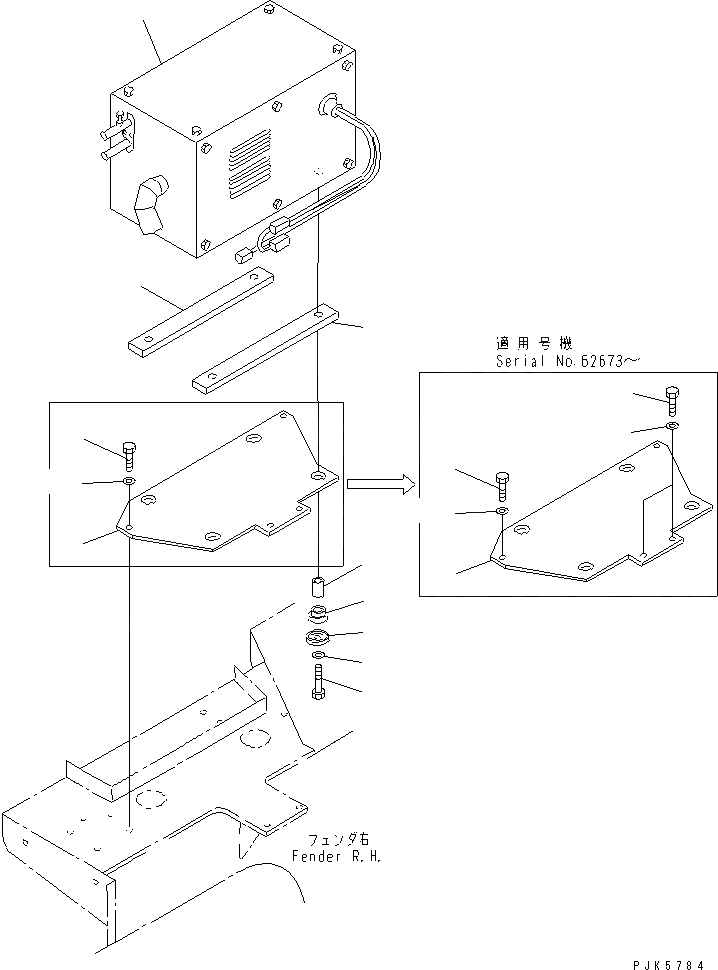
1
2
2
3
4
5
6
7
8
8
9
9
9A
10
10
10
FIT
1:1
100%

Артикул

Название

Примечание

Количество

1

14X-977-2160

HEATER

SN: 62376-UP

1шт.

2

14X-977-2150

PLATE

SN: 62376-UP

1шт.

3

195-01-16140

SPACER

SN: 62376-UP

4шт.

4

01010-81055

BOLT

SN: 62376-UP

4шт.

5

01643-31032

WASHER

SN: 62376-UP

4шт.

6

195-01-16130

COVER

SN: 62376-UP

4шт.

7

195-01-16160

CUSHION

SN: 62376-UP

4шт.

8

14X-977-2360

CUSHION

SN: 62376-UP

2шт.

9

01010-81025

BOLT

SN: 62673-UP

2шт.

9

01010-81025

BOLT

SN: 62376-62672

4шт.

9A

01010-81030

BOLT

SN: 62673-UP

2шт.

10

01643-31032

WASHER

SN: 62376-UP

4шт.

Выбрано товаров: 12