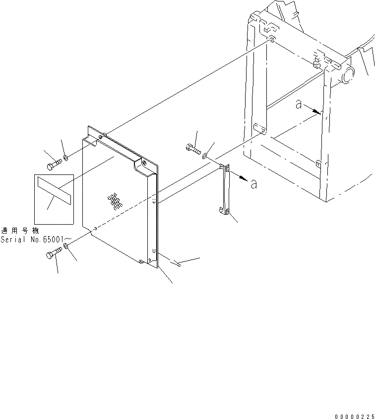
Запчасти Komatsu D65E-12 ЗАСЛОНКА РАДИАТОРА (ДВОЙН.) ЧАСТИ КОРПУСА

Схема запчастей Komatsu D65E-12 - ЗАСЛОНКА РАДИАТОРА (ДВОЙН.) ЧАСТИ КОРПУСА
1
2
3
4
5
6
7
8
8
9
FIT
1:1
100%

Артикул

Название

Примечание

Количество

1

14X-54-11561

MASK,(DOUBLE REINFORCED)

SN: 61441-UP

1шт.

1

14X-54-11560

MASK,(DOUBLE REINFORCED)

SN: 60942-61440

1шт.

2

14X-54-11270

BRACKET

SN: 60942-UP

1шт.

3

04050-14028

PIN,COTTER

SN: 60942-UP

2шт.

4

01010-81245

BOLT

SN: 60942-UP

4шт.

5

01643-31232

WASHER

SN: 60942-UP

4шт.

6

01010-81660

BOLT

SN: 61441-UP

2шт.

6

01010-81635

BOLT

SN: 60942-61440

2шт.

7

01010-81680

BOLT

SN: 61441-UP

2шт.

7

01010-81655

BOLT

SN: 60942-61440

2шт.

8

01643-31645

WASHER

SN: 60942-UP

4шт.

9

09690-P0280

PLATE, MARK,KOMATSU

SN: 65001-UP

1шт.

Выбрано товаров: 12