Качественные детали и логистика
Оригинальные и аналоговые запчасти с доставкой по России, Казахстану и Беларуси
©2022 PartSell ООО "Система" ИНН 2463123282 ОГРН 1212400004838
Центральный офис: г. Красноярск, Академика Киренского, д.87, пом.4
Телефон: 8 (800) 777-65-74 Email: zakaz@partsell.ru
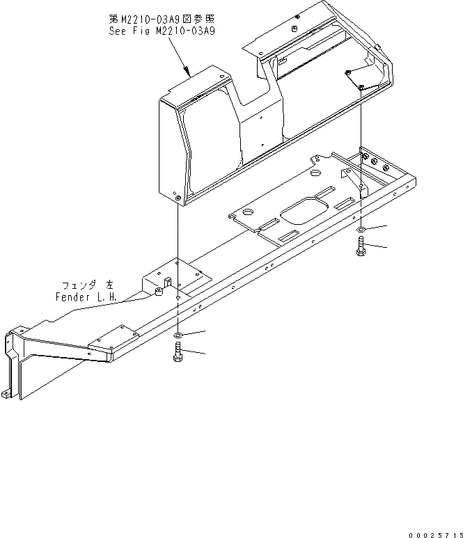
КРЫЛО (КРЫШКА АККУМУЛЯТОРА КРЕПЛЕНИЕ) (ЗАПЫЛЕНН СПЕЦ-Я.)
№
Артикул
Название
Примечание
Количество
1
01010-81225
BOLT
SN: 60942-UP
3шт.
2
01643-21232
WASHER
1шт.
3
130-43-64260
COLLAR
2шт.
Выбрано товаров: 0