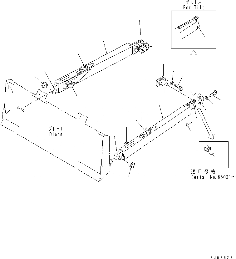
Запчасти Komatsu D65EX-12 ПРЯМ. РАМА (M) РАБОЧЕЕ ОБОРУДОВАНИЕ

Схема запчастей Komatsu D65EX-12 - ПРЯМ. РАМА (M) РАБОЧЕЕ ОБОРУДОВАНИЕ
1
1
2
2
3
3
4
4
5
5
6
6
7
8
9
10
11
11
12
12
13
14
3
3
6
6
7
8
9
10
FIT
1:1
100%

Артикул

Название

Примечание

Количество

|$6

14Y-71-00131

FRAME ASS'Y,L.H.

SN: 62110-UP

1шт.

|$7

0

FRAME ASS'Y,L.H.

SN: 61376-62109

1шт.

|$8

14Y-71-00030

FRAME ASS'Y,L.H.

SN: 60942-61375

1шт.

|$9

14Y-71-00141

FRAME ASS'Y,R.H.

SN: 62110-UP

1шт.

|$10

0

FRAME ASS'Y,R.H.

SN: 61376-62109

1шт.

|$11

14Y-71-00040

FRAME ASS'Y,R.H.

SN: 60942-61375

1шт.

1

0

FRAME,L.H.

SN: 62110-UP

1шт.

1

0

FRAME,L.H.

SN: 61376-62109

1шт.

1

0

FRAME,L.H.

SN: 60942-61375

1шт.

1

0

FRAME,R.H.

SN: 62110-UP

1шт.

1

0

FRAME,R.H.

SN: 61376-62109

1шт.

1

0

FRAME,R.H.

SN: 60942-61375

1шт.

2

14X-952-1390

JOINT (WELDED)

SN: 61376-UP

1шт.

2

14X-952-1190

JOINT (WELDED)

SN: 60942-61375

1шт.

3

0

BEARING,(WELDED) (KIT)

SN: 61376-UP

1шт.

3

0

BEARING,(WELDED) (KIT)

SN: 61376-UP

1шт.

3

0

BEARING,(WELDED) (KIT)

SN: 60942-61375

1шт.

4

14Y-71-12230

BRACKET (WELDED)

SN: 60942-UP

1шт.

5

14Y-71-13181

BRACKET (WELDED)

SN: 62110-UP

1шт.

5

14Y-71-13180

BRACKET (WELDED)

SN: 60942-62109

1шт.

6

14Y-71-22150

CAP (KIT)

SN: 65001-UP

2шт.

6

14Y-71-12150

CAP (KIT)

SN: 60942-65000

2шт.

7

01011-82465

BOLT (KIT)

SN: 60942-UP

4шт.

8

01643-32460

WASHER (KIT)

SN: 60942-UP

4шт.

9

130-70-13241

NUT (KIT)

SN: 60942-UP

4шт.

10

14Y-71-22280

SHIM, T=1.0 (KIT)

SN: 65001-UP

40шт.

11

14X-71-12230

BEARING

SN: 60942-UP

2шт.

12

14Z-71-33212

TRUNNION

SN: 65775-UP

2шт.

12

0

TRUNNION

SN: 60942-65774

2шт.

13

01010-82065

BOLT

SN: 60942-UP

16шт.

14

01643-32060

WASHER

SN: 60942-UP

16шт.

|$$32

SERVICE KIT

-1шт.

3

14Y-71-00081

PIVOT ASS'Y,L.H.

SN: 65001-UP

1шт.

3

0

PIVOT ASS'Y,L.H.

SN: 61376-65000

1шт.

3

14Y-71-00091

PIVOT ASS'Y,R.H.

SN: 65001-UP

1шт.

3

0

PIVOT ASS'Y,R.H.

SN: 61376-65000

1шт.

3

0

PIVOT ASS'Y

SN: 60942-61375

2шт.

3

0

BEARING,L.H.

SN: 61376-UP

1шт.

3

0

BEARING,R.H.

SN: 61376-UP

1шт.

3

0

BEARING

SN: 60942-61375

1шт.

6

14Y-71-22150

CAP

SN: 65001-UP

1шт.

6

14Y-71-12150

CAP

SN: 60942-65000

1шт.

7

01011-82465

BOLT

SN: 60942-UP

2шт.

8

01643-32460

WASHER

SN: 60942-UP

2шт.

9

130-70-13241

NUT

SN: 60942-UP

2шт.

10

14Y-71-22280

SHIM, T=1.0

SN: 65001-UP

20шт.

Выбрано товаров: 46