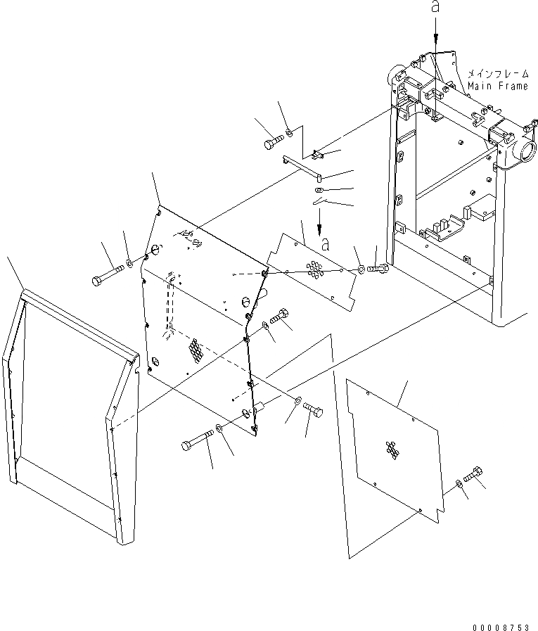
Запчасти Komatsu D65EX-15 ЗАСЛОНКА РАДИАТОРА (ДЛЯ ПЕРФОРИРОВАНН. ДВОЙН. ЗАСЛОНКА) ЧАСТИ КОРПУСА

Схема запчастей Komatsu D65EX-15 - ЗАСЛОНКА РАДИАТОРА (ДЛЯ ПЕРФОРИРОВАНН. ДВОЙН. ЗАСЛОНКА) ЧАСТИ КОРПУСА
1
2
3
4
5
6
7
7
8
8
9
10
11
11
12
13
14
15
16
17
18
19
FIT
1:1
100%

Артикул

Название

Примечание

Количество

|$4

14X-54-31700

MASK ASS'Y

SN: 67170-UP

1шт.

|$5

14X-54-31400

MASK ASS'Y

SN: 67001-67169

1шт.

1

14X-54-31130

GUARD

SN: 67170-UP

1шт.

1

14X-54-31112

GUARD

SN: 67001-67169

1шт.

2

14X-54-31290

MASK

SN: 67170-UP

1шт.

2

14X-54-31410

MASK

SN: 67001-67169

1шт.

3

01010-81225

BOLT

SN: 67001-UP

10шт.

4

01643-31232

WASHER

SN: 67001-UP

10шт.

5

14X-54-31510

MASK

SN: 67001-UP

1шт.

6

14X-54-31530

MASK

SN: 67001-UP

1шт.

7

01010-81225

BOLT

SN: 67001-UP

8шт.

8

01643-31232

WASHER

SN: 67001-UP

8шт.

9

01011-81640

BOLT

SN: 67001-UP

2шт.

10

01011-81620

BOLT

SN: 67001-UP

2шт.

11

01643-31645

WASHER

SN: 67001-UP

4шт.

12

01010-81230

BOLT

SN: 67001-UP

4шт.

13

01643-31232

WASHER

SN: 67001-UP

4шт.

14

14X-54-31910

BAR

SN: 67001-UP

1шт.

15

04050-15035

PIN

SN: 67001-UP

1шт.

16

01643-32060

WASHER

SN: 67001-UP

1шт.

17

20Y-54-12920

CLAMP

SN: 67001-UP

1шт.

18

01010-80812

BOLT

SN: 67001-UP

2шт.

19

01643-30823

WASHER

SN: 67001-UP

2шт.

Выбрано товаров: 23