Запчасти Komatsu D65EX-15 СЦЕПНОЕ УСТРОЙСТВО (ЕС БЕСШУМН. СПЕЦИФ-Я) РАБОЧЕЕ ОБОРУДОВАНИЕ

Схема запчастей Komatsu D65EX-15 - СЦЕПНОЕ УСТРОЙСТВО (ЕС БЕСШУМН. СПЕЦИФ-Я) РАБОЧЕЕ ОБОРУДОВАНИЕ
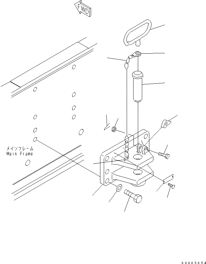
1
2
3
4
5
6
7
8
9
10
11
12
13
14
FIT
1:1
100%

Артикул

Название

Примечание

Количество

1

14X-69-33100

BRACKET

SN: 67001-UP

1шт.

2

09245-04830

CHAIN

SN: 67001-UP

1шт.

3

144-69-11230

PLATE

SN: 67001-UP

1шт.

4

09245-50060

HOOK (WELDED)

SN: 67001-UP

1шт.

5

130-69-11190

PIN (WELDED)

SN: 67001-UP

1шт.

6

144-69-11210

HANDLE (WELDED)

SN: 67001-UP

1шт.

7

09249-00016

LATCH

SN: 67001-UP

1шт.

8

01052-81265

BOLT

SN: 67001-UP

1шт.

9

01592-31215

NUT

SN: 67001-UP

1шт.

10

04050-13025

PIN

SN: 67001-UP

1шт.

11

01010-82465

BOLT

SN: 67001-UP

6шт.

12

01643-32460

WASHER

SN: 67001-UP

6шт.

13

09823-00000

PLATE, NAME

SN: 67001-UP

1шт.

14

04418-13060

SCREW

SN: 67001-UP

2шт.

Выбрано товаров: 14