Запчасти Komatsu D65EX-15 ПОДЛОКОТНИК КРЫШКА(КРЫШКАПРАВ.) (БЕЗ КАБИНЫ) КАБИНА ОПЕРАТОРА И СИСТЕМА УПРАВЛЕНИЯ

Схема запчастей Komatsu D65EX-15 - ПОДЛОКОТНИК КРЫШКА(КРЫШКАПРАВ.) (БЕЗ КАБИНЫ) КАБИНА ОПЕРАТОРА И СИСТЕМА УПРАВЛЕНИЯ
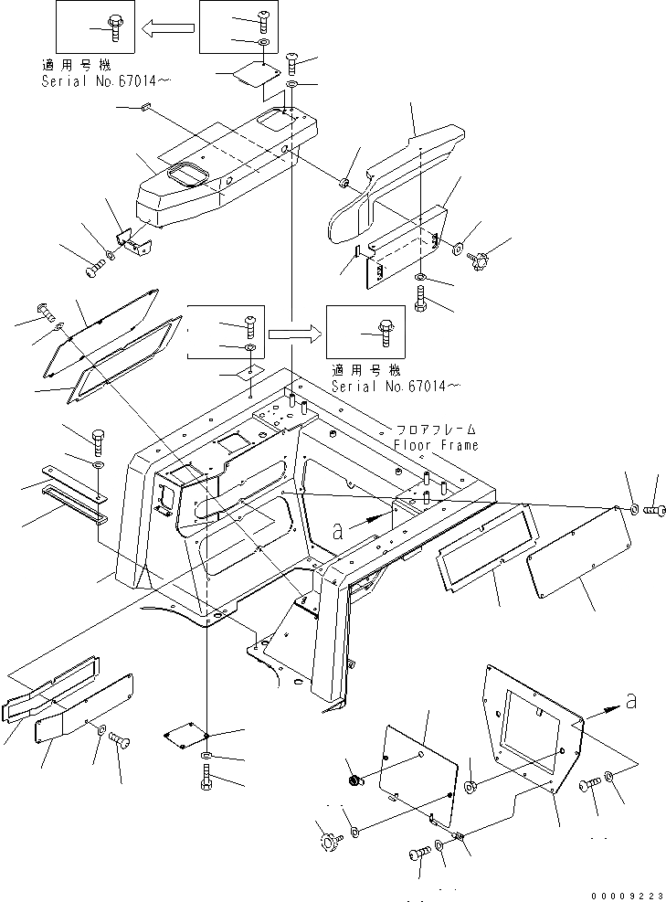
1
2
3
4
5
6
7
8
9
10
11
12
13
14
15
16
17
17
18
19
20
20
21
22
23
24
25
26
27
28
28
28
29
29
29
30
31
32
33
34
35
36
37
38
39
40
41
42
43
44
45
46
47
FIT
1:1
100%

Артикул

Название

Примечание

Количество

|1

124-54-68410

ARM REST ASS'Y

SN: 67001-UP

1шт.

1

124-54-68420

REST

SN: 67001-UP

1шт.

2

124-54-68430

PLATE,R.H.

SN: 67001-UP

1шт.

3

134-54-66240

SHEET

SN: 67001-UP

2шт.

4

01010-80820

BOLT

SN: 67001-UP

2шт.

5

01643-30823

WASHER

SN: 67001-UP

2шт.

6

195-54-68760

KNOB

SN: 67001-UP

2шт.

7

175-54-34170

WASHER

SN: 67001-UP

2шт.

8

17A-54-25610

SPACER

SN: 67001-UP

2шт.

9

14X-54-36860

COVER,R.H.

SN: 67001-UP

1шт.

10

17A-54-16881

SHEET

SN: 67001-UP

3шт.

11

01245-00816

SCREW

SN: 67001-UP

2шт.

12

01643-70823

WASHER

SN: 67001-UP

2шт.

13

14X-54-16452

COVER,R.H.

SN: 67001-UP

1шт.

14

01245-00816

SCREW

SN: 67001-UP

4шт.

15

01643-70823

WASHER

SN: 67001-UP

4шт.

16

14X-54-25190

PLATE

SN: 67001-UP

1шт.

17

01435-41225

BOLT

SN: 67014-UP

1шт.

|17

01245-01225

SCREW

SN: 67001-67013

1шт.

18

01643-71232

WASHER

SN: 67001-67013

1шт.

19

14X-54-36770

COVER

SN: 67001-UP

1шт.

20

01435-40816

BOLT

SN: 67014-UP

2шт.

|20

01245-00816

SCREW

SN: 67001-67013

1шт.

21

01643-70823

WASHER

SN: 67001-67013

1шт.

22

14X-54-16143

COVER

SN: 67001-UP

1шт.

23

14X-54-16183

SEAL

SN: 67001-UP

1шт.

24

14X-54-36361

COVER

SN: 67001-UP

1шт.

25

14X-54-36381

SEAL

SN: 67001-UP

1шт.

26

14X-54-36750

COVER

SN: 67001-UP

1шт.

27

14X-54-36190

SEAL

SN: 67001-UP

1шт.

28

01245-00820

SCREW

SN: 67001-UP

18шт.

29

01643-70823

WASHER

SN: 67001-UP

18шт.

30

14X-54-36830

COVER

SN: 67001-UP

1шт.

31

154-54-73731

COVER

SN: 67014-UP

1шт.

|31

154-54-73730

COVER

SN: 67001-67013

1шт.

32

154-54-73720

BRACKET

SN: 67001-UP

2шт.

33

01245-00825

SCREW

SN: 67001-UP

2шт.

34

01643-70823

WASHER

SN: 67001-UP

2шт.

35

195-54-68760

KNOB

SN: 67001-UP

2шт.

36

01640-21016

WASHER

SN: 67001-UP

2шт.

37

01594-01008

NUT

SN: 67001-UP

2шт.

38

205-60-71220

LOCK ASS'Y

SN: 67001-UP

1шт.

39

01245-00820

SCREW

SN: 67001-UP

8шт.

40

01643-70823

WASHER

SN: 67001-UP

8шт.

41

17A-54-25560

COVER

SN: 67001-UP

1шт.

42

17A-54-25570

COVER

SN: 67001-UP

1шт.

43

01010-81230

BOLT

SN: 67001-UP

2шт.

44

01643-31232

WASHER

SN: 67001-UP

2шт.

45

14X-43-34280

COVER

SN: 67001-UP

1шт.

46

01010-80825

BOLT

SN: 67001-UP

4шт.

47

01643-30823

WASHER

SN: 67001-UP

4шт.

Выбрано товаров: 51