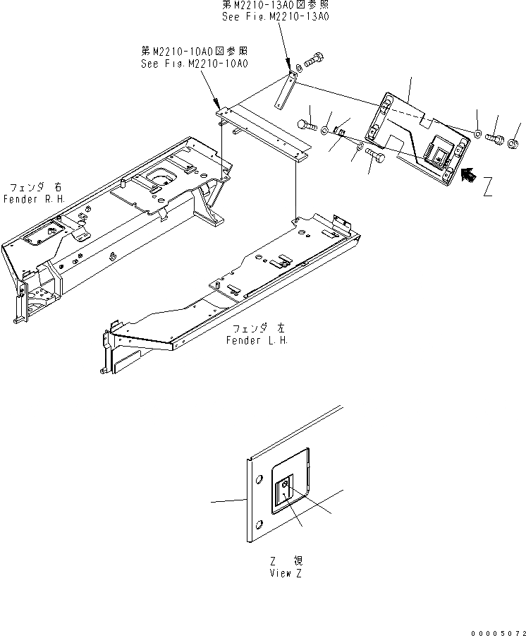
Запчасти Komatsu D65EX-15 ЗАДН. КРЫШКА (ДЛЯ РЫХЛИТЕЛЬ) ЧАСТИ КОРПУСА

Схема запчастей Komatsu D65EX-15 - ЗАДН. КРЫШКА (ДЛЯ РЫХЛИТЕЛЬ) ЧАСТИ КОРПУСА
1
1
2
3
4
5
6
6
7
7
8
9
10
FIT
1:1
100%

Артикул

Название

Примечание

Количество

1

14X-54-35183

COVER

SN: 67001-UP

1шт.

2

14X-54-12910

LOCK (WELDED)

SN: 67001-UP

1шт.

3

421-54-11381

LOCK

SN: 67001-UP

1шт.

4

09461-00013

PLATE

SN: 67001-UP

1шт.

5

09461-00014

PLATE

SN: 67001-UP

1шт.

6

01010-81020

BOLT

SN: 67001-UP

4шт.

7

01643-31032

WASHER

SN: 67001-UP

4шт.

8

01010-81225

BOLT

SN: 67001-UP

4шт.

9

01643-31232

WASHER

SN: 67001-UP

4шт.

10

09415-02520

CAP,------------------------------

SN: 67001-UP

4шт.

Выбрано товаров: 10