Запчасти Komatsu D65P-12 БОКОВ. КРЫШКА ДВИГ. (НИЖН.) (DP.PX) ЧАСТИ КОРПУСА

Схема запчастей Komatsu D65P-12 - БОКОВ. КРЫШКА ДВИГ. (НИЖН.) (DP.PX) ЧАСТИ КОРПУСА
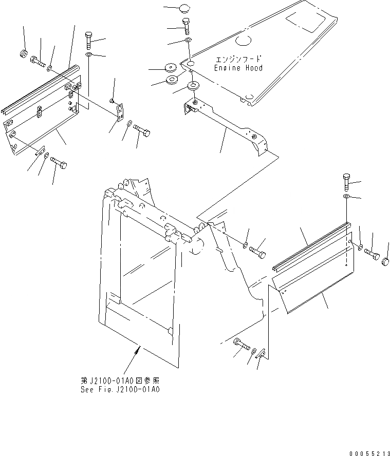
1
2
3
4
5
6
7
8
9
9
10
11
12
13
14
14
15
15
16
16
17
17
18
18
19
20
21
22
22
23
24
25
26
FIT
1:1
100%

Артикул

Название

Примечание

Количество

1

14X-54-12334

COVER,L.H.

SN: 60884-UP

1шт.

2

14X-54-12470

GUIDE

SN: 60884-UP

1шт.

3

01010-81225

BOLT

SN: 60884-UP

2шт.

4

01643-31232

WASHER

SN: 60884-UP

2шт.

5

14X-54-12344

COVER,R.H.

SN: 60884-UP

1шт.

6

14X-54-12470

GUIDE

SN: 60884-UP

1шт.

7

01010-81225

BOLT

SN: 60884-UP

2шт.

8

01643-31232

WASHER

SN: 60884-UP

2шт.

9

14X-54-12930

SEAL

SN: 60884-UP

2шт.

10

14X-54-13980

PLATE

SN: 60884-UP

4шт.

11

14X-54-12960

STOPPER

SN: 60884-UP

4шт.

12

01010-81225

BOLT

SN: 60884-UP

8шт.

13

01643-31232

WASHER

SN: 60884-UP

8шт.

14

09415-02512

CAP

SN: 60884-UP

2шт.

15

01010-81235

BOLT

SN: 60884-UP

2шт.

16

01643-31232

WASHER

SN: 60884-UP

2шт.

17

01010-81225

BOLT

SN: 60884-UP

2шт.

18

01643-31232

WASHER

SN: 60884-UP

2шт.

19

14X-54-12125

BRACKET

SN: 60884-UP

1шт.

20

01010-81235

BOLT

SN: 60884-UP

4шт.

21

01643-31232

WASHER

SN: 60884-UP

4шт.

22

195-54-46180

PLATE

SN: 60884-UP

4шт.

23

6930-21-4120

PLATE

SN: 60884-UP

2шт.

24

01010-81640

BOLT

SN: 60884-UP

2шт.

25

01643-31645

WASHER

SN: 60884-UP

2шт.

26

14X-54-12590

CAP

SN: 60884-UP

2шт.

Выбрано товаров: 26