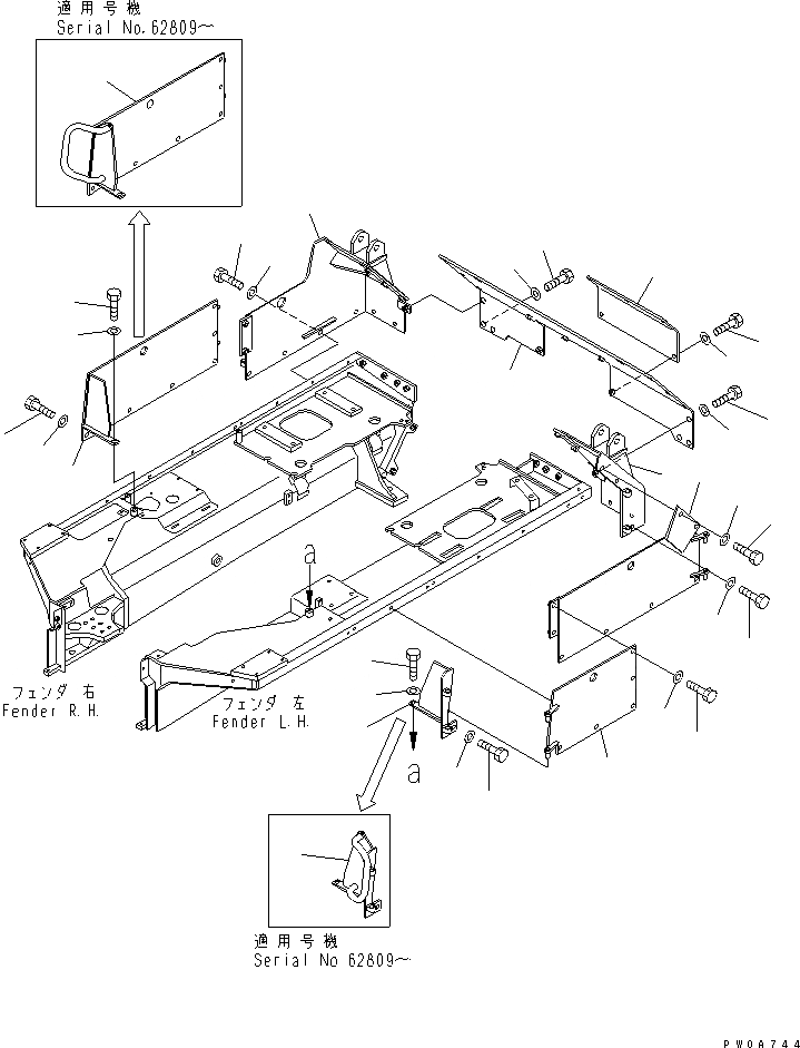
Запчасти Komatsu D65PX-12-E ROPS SWEEP (COVER) КАБИНА ОПЕРАТОРА И СИСТЕМА УПРАВЛЕНИЯ

Схема запчастей Komatsu D65PX-12-E - ROPS SWEEP (COVER) КАБИНА ОПЕРАТОРА И СИСТЕМА УПРАВЛЕНИЯ
1
1
2
3
4
4
5
6
7
8
8
9
9
9
9
9
9
9
10
11
11
11
11
11
11
11
11
12
12
13
14
15
FIT
1:1
100%

Артикул

Название

Примечание

Количество

1

14U-906-1141

GUARD,L.H.

SN: 62809-UP

1шт.

|1

14U-906-1140

COVER,LH

SN: 60884-62808

1шт.

2

14U-906-1150

COVER,LH

SN: 60884-UP

1шт.

3

14U-906-1160

COVER,LH

SN: 60884-UP

1шт.

4

14U-906-1171

GUARD,R.H.

SN: 62809-UP

1шт.

|4

14U-906-1170

COVER,RH

SN: 60884-62808

2шт.

5

14U-906-1180

COVER,LH

SN: 60884-UP

2шт.

6

14U-906-1190

COVER,RH

SN: 60884-UP

1шт.

7

14U-906-1210

COVER

SN: 60884-UP

1шт.

8

01010-81635

BOLT

SN: 60884-UP

2шт.

9

01010-81640

BOLT

SN: 60884-UP

35шт.

10

01010-81645

BOLT

SN: 61723-UP

4шт.

|10

01010-81640

BOLT

SN: 60884-61722

4шт.

11

01643-31645

WASHER

SN: 60884-UP

29шт.

12

21T-54-16150

WASHER

SN: 61723-UP

12шт.

|12

01643-31645

WASHER

SN: 60884-61722

12шт.

13

14U-906-1260

COVER

SN: 60884-UP

1шт.

14

01010-51640

BOLT

SN: 60884-UP

5шт.

15

01643-31645

WASHER

SN: 60884-UP

5шт.

Выбрано товаров: 19