Запчасти Komatsu D65PX-12U ЛИНИЯ ПЕРЕКОСА (ГУСЕНИЧНАЯ РАМА ) (НАКЛОНЯЕМ. ОТВАЛ) ГИДРАВЛИКА

Схема запчастей Komatsu D65PX-12U - ЛИНИЯ ПЕРЕКОСА (ГУСЕНИЧНАЯ РАМА ) (НАКЛОНЯЕМ. ОТВАЛ) ГИДРАВЛИКА
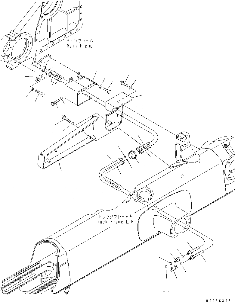
1
2
2
2
3
4
5
6
6
7
7
8
9
10
11
12
13
14
14
14
15
16
16
16
16
17
17
18
18
19
20
21
22
FIT
1:1
100%

Артикул

Название

Примечание

Количество

1

14Y-62-11382

BRACKET,L.H.

SN: 65582-UP

1шт.

1

14Y-62-11381

BRACKET,L.H.

SN: 60884-65581

1шт.

2

02896-11009

O-RING

SN: 65582-UP

4шт.

3

01010-82055

BOLT

SN: 60884-UP

2шт.

4

01643-32060

WASHER

SN: 60884-UP

2шт.

5

14Y-62-11262

COVER

SN: 65571-UP

1шт.

5

14Y-62-11261

COVER,L.H.

SN: 60884-65570

1шт.

6

01010-81235

BOLT

SN: 60884-UP

4шт.

7

01643-31232

WASHER

SN: 60884-UP

4шт.

8

14Y-62-11283

COVER,L.H.

SN: 60884-UP

1шт.

9

01010-81235

BOLT

SN: 60884-UP

2шт.

10

01643-31232

WASHER

SN: 60884-UP

2шт.

11

14Y-62-11293

COVER,L.H.

SN: 60884-UP

1шт.

12

01010-81265

BOLT

SN: 60884-UP

5шт.

13

01643-31232

WASHER

SN: 60884-UP

5шт.

14

14X-62-32412

HOSE

SN: 65582-UP

2шт.

14

10E-852-5460

HOSE

SN: 60884-65581

2шт.

15

14Y-62-11360

RUBBER

SN: 60884-UP

1шт.

16

14Y-62-31680

HOSE

SN: 65637-UP

2шт.

16

14Y-62-31371

HOSE

SN: 65582-65636

2шт.

16

14Y-62-11370

HOSE

SN: 60884-65581

2шт.

16

14Y-62-31371

HOSE

SN: 65637-UP

1шт.

16

11Y-62-29140

COVER

SN: 65637-UP

1шт.

16

08034-20414

BAND

SN: 65637-UP

2шт.

17

02896-11009

O-RING

SN: 65582-UP

2шт.

18

208-38-11590

O-RING

SN: 65001-UP

2шт.

19

134-62-63710

COUPLING

SN: 65001-UP

1шт.

19

10E-60-16340

COUPLING

SN: 60884-65000

2шт.

20

10E-09-17120

O-RING

SN: 65001-UP

1шт.

21

10E-09-17130

RING

SN: 65001-UP

1шт.

22

134-62-63720

COUPLING

SN: 65001-UP

1шт.

22

10E-60-16350

COUPLING

SN: 60884-65000

2шт.

Выбрано товаров: 32