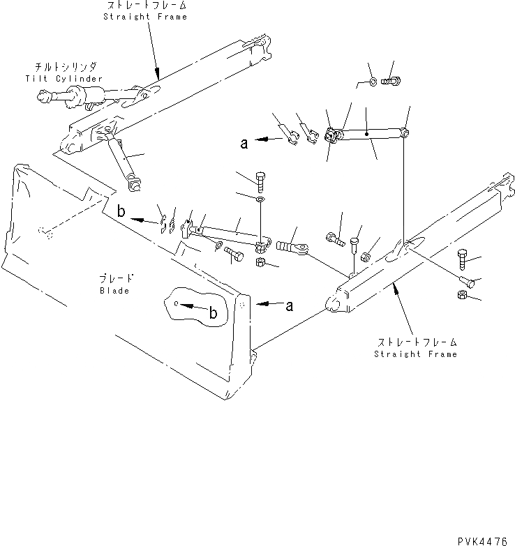
Запчасти Komatsu D65PX-12U РЫЧАГ И БАЛКА (ОТВАЛ С ПЕРЕКОСОМ)(NONADJUST ТИП)(№7-) РАБОЧЕЕ ОБОРУДОВАНИЕ

Схема запчастей Komatsu D65PX-12U - РЫЧАГ И БАЛКА (ОТВАЛ С ПЕРЕКОСОМ)(NONADJUST ТИП)(№7-) РАБОЧЕЕ ОБОРУДОВАНИЕ
1
1
2
3
4
5
6
7
8
9
10
11
12
13
14
15
16
17
18
19
20
21
22
23
24
25
26
FIT
1:1
100%

Артикул

Название

Примечание

Количество

|$3

14Y-71-00151

CENTER BRACE ASS'Y

SN: 62611-UP

2шт.

|$4

14Y-71-00150

CENTER BRACE ASS'Y

SN: 61427-62610

2шт.

1

14Y-71-13110

BRACE

SN: 61427-UP

1шт.

2

14Y-71-13120

SHAFT (WELDED)

SN: 61427-UP

1шт.

3

144-817-2420

RETAINER

SN: 61427-UP

1шт.

4

144-817-2570

JOINT

SN: 61427-UP

1шт.

5

01011-82025

BOLT

SN: 61427-UP

1шт.

6

01580-12016

NUT

SN: 61427-UP

1шт.

7

01643-32060

WASHER

SN: 61427-UP

1шт.

8

13F-Z27-5610

PIN

SN: 61427-UP

2шт.

9

01010-81265

BOLT

SN: 61427-UP

2шт.

10

01598-01214

NUT

SN: 61427-UP

2шт.

|$16

144-817-0670

SHIM KIT

SN: 61427-UP

2шт.

11

0

SHIM, 1.0MM

SN: 61427-UP

12шт.

12

0

SHIM, 0.5MM

SN: 61427-UP

4шт.

13

01010-82075

BOLT

SN: 61427-UP

8шт.

14

01643-32060

WASHER

SN: 61427-UP

8шт.

|$22

14Y-71-00170

TILT BRACE ASS'Y

SN: 61427-UP

1шт.

15

14X-71-13210

BRACE

SN: 61427-UP

1шт.

16

14X-71-13A10

TUBE (WELDED)

SN: 61427-UP

1шт.

17

14X-71-13220

JOINT (WELDED)

SN: 61427-UP

1шт.

18

144-817-2420

RETAINER

SN: 61427-UP

1шт.

19

14Y-71-13120

SHAFT (WELDED)

SN: 61427-UP

1шт.

20

13F-Z27-5610

PIN

SN: 61427-UP

2шт.

21

01010-81265

BOLT

SN: 61427-UP

2шт.

22

01598-01214

NUT

SN: 61427-UP

2шт.

|$32

144-817-0670

SHIM KIT

SN: 61427-UP

2шт.

23

0

SHIM, 1.0MM

SN: 61427-UP

12шт.

24

0

SHIM, 0.5MM

SN: 61427-UP

4шт.

25

01010-82075

BOLT

SN: 61427-UP

8шт.

26

01643-32060

WASHER

SN: 61427-UP

8шт.

Выбрано товаров: 31