Запчасти Komatsu D65PX-15E0 ОСНОВН. КОНСТРУКЦИЯ (HSS КОНТРОЛЛЕР) КАБИНА ОПЕРАТОРА И СИСТЕМА УПРАВЛЕНИЯ

Схема запчастей Komatsu D65PX-15E0 - ОСНОВН. КОНСТРУКЦИЯ (HSS КОНТРОЛЛЕР) КАБИНА ОПЕРАТОРА И СИСТЕМА УПРАВЛЕНИЯ
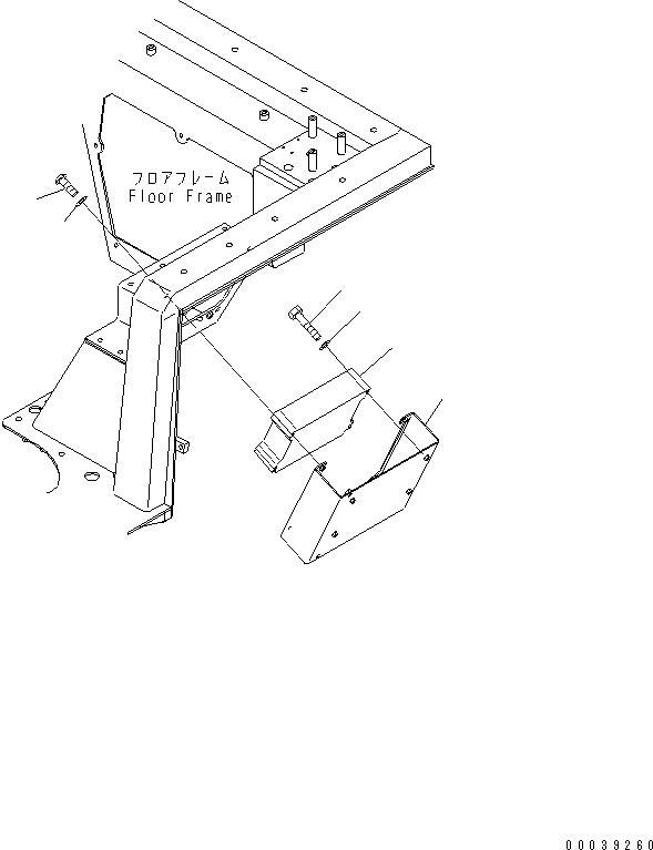
1
2
3
4
5
6
FIT
1:1
100%

Артикул

Название

Примечание

Количество

1

7830-74-3006

CONTROLLER

SN: 71753-UP

1шт.

1

0

CONTROLLER

SN: 70983-71752

1шт.

1

0

CONTROLLER

SN: 70277-70982

1шт.

1

0

CONTROLLER

SN: 69500-70276

1шт.

1

0

CONTROLLER

SN: 69119-69499

1шт.

1

0

CONTROLLER ASS'Y

SN: (69033-69118)

1шт.

1

0

CONTROLLER

SN: 69001-69032

1шт.

2

01010-80885

BOLT

SN: 69001-UP

4шт.

3

01643-30823

WASHER

SN: 69001-UP

4шт.

4

14X-54-36550

BRACKET

SN: 69001-UP

1шт.

5

01245-00820

SCREW

SN: 69001-UP

4шт.

6

01643-70823

WASHER

SN: 69001-UP

4шт.

Выбрано товаров: 12