Запчасти Komatsu D65PX-15E0 НИЖН. ЗАЩИТА (УСИЛЕНН.) (ЕС) ЧАСТИ КОРПУСА

Схема запчастей Komatsu D65PX-15E0 - НИЖН. ЗАЩИТА (УСИЛЕНН.) (ЕС) ЧАСТИ КОРПУСА
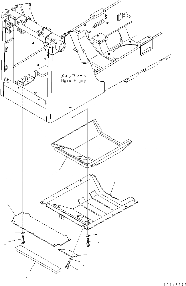
1
2
3
4
5
6
7
8
9
10
11
FIT
1:1
100%

Артикул

Название

Примечание

Количество

|$2

14X-A62-1812

GUARD FRONT

SN: 69001-UP

1шт.

1

0

GUARD,FRONT

SN: 69001-UP

1шт.

2

14X-A62-1822

ABSORBER

SN: 69001-UP

1шт.

3

14X-54-35320

COVER

SN: 69001-UP

1шт.

4

01010-81230

BOLT

SN: 69001-UP

4шт.

5

01643-31232

WASHER

SN: 69001-UP

4шт.

|$12

14X-A62-1830

GUARD FRONT

SN: 69001-UP

1шт.

6

0

COVER

SN: 69001-UP

1шт.

7

14X-A62-1840

ABSORBER

SN: 69001-UP

1шт.

8

01010-81640

BOLT

SN: 69001-UP

5шт.

9

01643-31645

WASHER

SN: 69001-UP

5шт.

10

01010-81640

BOLT

SN: 69001-UP

8шт.

11

01643-31645

WASHER

SN: 69001-UP

8шт.

Выбрано товаров: 13