Запчасти Komatsu D65PX-17 КАБИНА ROPS, ДВЕРЬ И LATCH, ПРАВ. (№-) КАБИНА ROPS, С AM-FM STEREO РАДИО С AUX ФИКСИР., ЕСКАНАТ И ASIA, ДЛЯ СТРАН ЕС НОВ. NOISE ARRANGEMENT , D MACHINE УПРАВЛ-Е ЗАГЛУШКА И PL

Схема запчастей Komatsu D65PX-17 - КАБИНА ROPS, ДВЕРЬ И LATCH, ПРАВ. (№-) КАБИНА ROPS, С AM-FM STEREO РАДИО С AUX ФИКСИР., ЕСКАНАТ И ASIA, ДЛЯ СТРАН ЕС НОВ. NOISE ARRANGEMENT , D MACHINE УПРАВЛ-Е ЗАГЛУШКА И PL
44
45
46
1
48
50
49
47
37
19
43
42
41
40
39
38
35
36
36
34
33
32
31
30
29
28
27
26
25
24
20
19
18
17
16
15
14
13
12
11
10
9
8
4
2
6
7
5
3
23
21
22
51
FIT
1:1
100%

Артикул

Название

Примечание

Количество

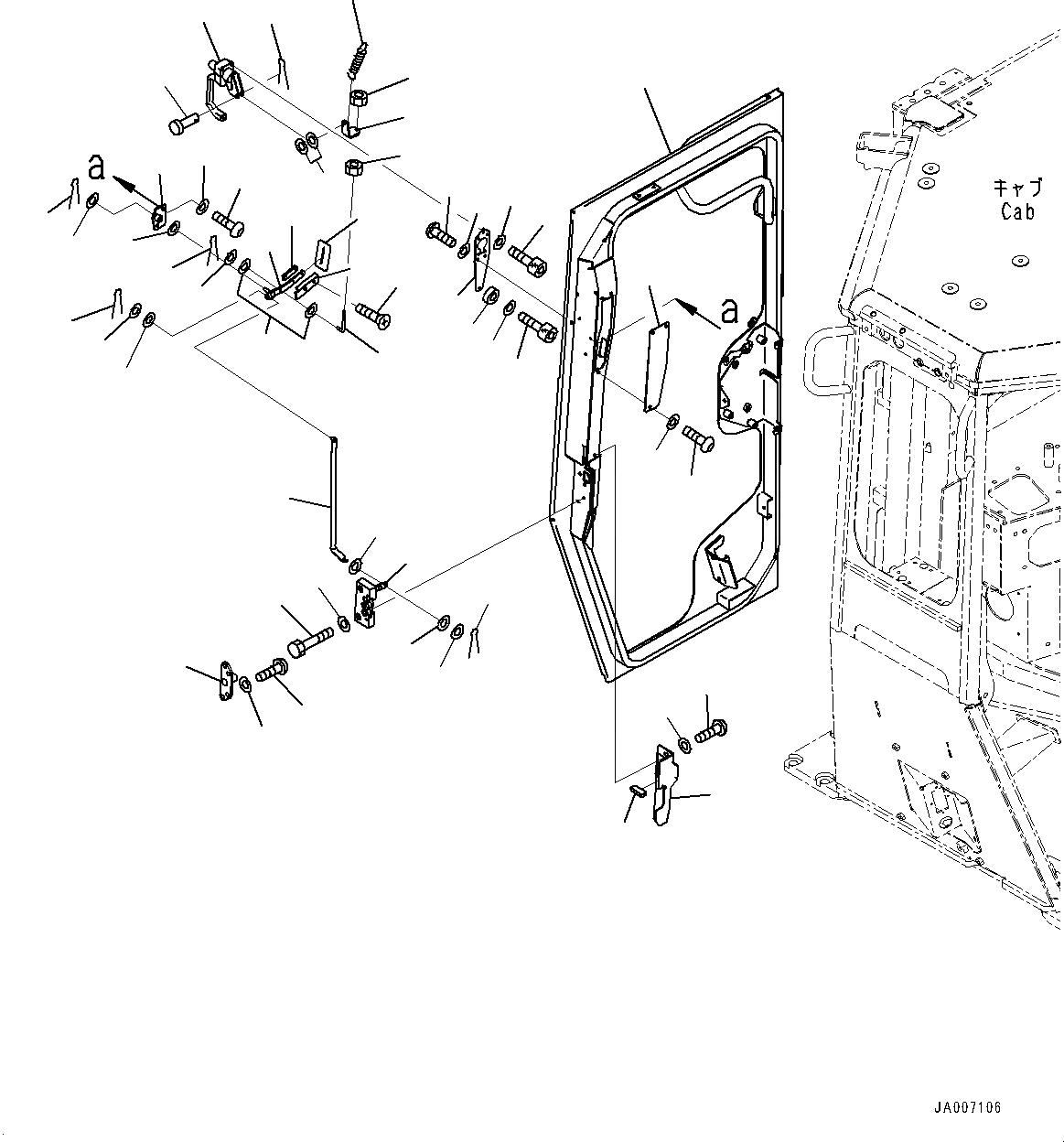
1

14X-Y79-6910

Door Assembly

SN: 1001-UP

1шт.

2

11Y-979-2571

Handle Assembly

SN: 1001-UP

1шт.

3

01252-70520

Bolt

SN: 1001-UP

4шт.

4

01641-20508

Washer, Flat

SN: 1001-UP

4шт.

5

01252-70525

Bolt, Hexagon Socket Head

SN: 1001-UP

1шт.

6

01641-20508

Washer, Flat

SN: 1001-UP

1шт.

7

14X-Y79-3130

Spacer

SN: 1001-UP

1шт.

8

12Y-978-3210

Plate

SN: 1001-UP

1шт.

9

01245-00620

Screw

SN: 1001-UP

3шт.

10

01643-70623

Washer

SN: 1001-UP

3шт.

11

04205-10622

Pin

SN: 1001-UP

1шт.

12

01643-70623

Washer

SN: 1001-UP

4шт.

13

04050-11612

Pin, Cotter

SN: 1001-UP

1шт.

14

12Y-978-3281

Knob

SN: 1001-UP

1шт.

15

12Y-978-3290

Plate

SN: 1001-UP

1шт.

16

01023-70412

Screw

SN: 1001-UP

2шт.

17

14X-Y79-3230

Plate

SN: 1001-UP

1шт.

18

14X-Y79-3360

Rod

SN: 1001-UP

1шт.

19

01580-10605

Nut

SN: 1001-UP

2шт.

20

176-06-42170

Spring

SN: 1001-UP

1шт.

21

01643-70623

Washer

SN: 1001-UP

1шт.

22

12Y-978-3310

Rubber

SN: 1001-UP

2шт.

23

04050-11612

Pin, Cotter

SN: 1001-UP

1шт.

24

14X-Y79-3661

Plate

SN: 1001-UP

1шт.

25

12Y-978-3271

Plate

SN: 1001-UP

1шт.

26

01643-70823

Washer

SN: 1001-UP

1шт.

27

12Y-978-3360

Rubber

SN: 1001-UP

1шт.

28

04050-12012

Pin, Cotter

SN: 1001-UP

1шт.

29

01245-00620

Screw

SN: 1001-UP

2шт.

30

01643-70623

Washer

SN: 1001-UP

2шт.

31

17A-979-3330

Plate

SN: 1001-UP

1шт.

32

01640-20610

Washer

SN: 1001-UP

1шт.

33

12Y-978-3310

Rubber

SN: 1001-UP

2шт.

34

04050-11612

Pin, Cotter

SN: 1001-UP

1шт.

35

01643-70623

Washer

SN: 1001-UP

1шт.

36

12Y-978-3310

Rubber

SN: 1001-UP

2шт.

37

04050-11612

Pin, Cotter

SN: 1001-UP

1шт.

38

195-Z11-4510

Lock

SN: 1001-UP

1шт.

39

01010-D0635

Bolt

SN: 1001-UP

4шт.

40

01643-70623

Washer

SN: 1001-UP

4шт.

41

12Y-978-3480

Striker

SN: 1001-UP

1шт.

42

01245-00825

Screw

SN: 1001-UP

4шт.

43

01643-70823

Washer

SN: 1001-UP

4шт.

44

14X-Y79-3310

Plate

SN: 1001-UP

1шт.

45

01245-00620

Screw

SN: 1001-UP

3шт.

46

01643-70623

Washer

SN: 1001-UP

3шт.

47

14X-Y79-6830

Cover,R.H.

SN: 1001-UP

1шт.

48

17A-979-3811

Sheet

SN: 1001-UP

1шт.

49

01245-00620

Screw

SN: 1001-UP

2шт.

50

01643-70623

Washer

SN: 1001-UP

2шт.

51

17A-979-4120

Sheet

SN: 1001-UP

1шт.

Выбрано товаров: 51