Запчасти Komatsu D65WX-15 ROPS ЧАСТИ КОРПУСА (С КАБИНОЙ) КАБИНА ОПЕРАТОРА И СИСТЕМА УПРАВЛЕНИЯ

Схема запчастей Komatsu D65WX-15 - ROPS ЧАСТИ КОРПУСА (С КАБИНОЙ) КАБИНА ОПЕРАТОРА И СИСТЕМА УПРАВЛЕНИЯ
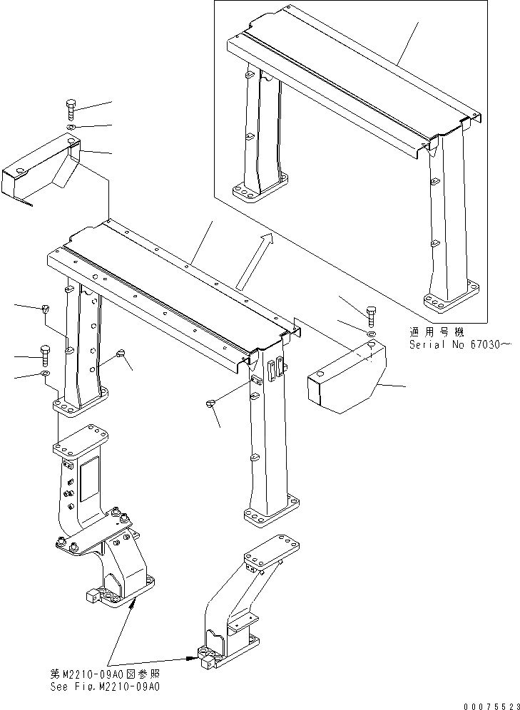
1
1
2
3
4
5
6
6
7
7
8
8
9
FIT
1:1
100%

Артикул

Название

Примечание

Количество

1

14X-Z78-3210

GUARD

SN: 67030-UP

1шт.

1

14X-Z78-3112

GUARD

SN: 67001-67029

1шт.

2

01010-82470

BOLT

SN: 67001-UP

12шт.

3

01643-32460

WASHER

SN: 67001-UP

12шт.

4

134-X78-7412

COVER

SN: 67001-UP

1шт.

5

134-X78-7422

COVER

SN: 67001-UP

1шт.

6

01010-81230

BOLT

SN: 67001-UP

4шт.

7

01643-31232

WASHER

SN: 67001-UP

4шт.

8

07049-01215

PLUG

SN: 67030-UP

4шт.

8

07049-01215

PLUG

SN: 67001-67029

12шт.

9

07049-01012

PLUG

SN: 67001-67029

6шт.

Выбрано товаров: 11