Запчасти Komatsu D65WX-15 БОКОВ. КРЫШКА ДВИГ. (НИЖН.) ЧАСТИ КОРПУСА

Схема запчастей Komatsu D65WX-15 - БОКОВ. КРЫШКА ДВИГ. (НИЖН.) ЧАСТИ КОРПУСА
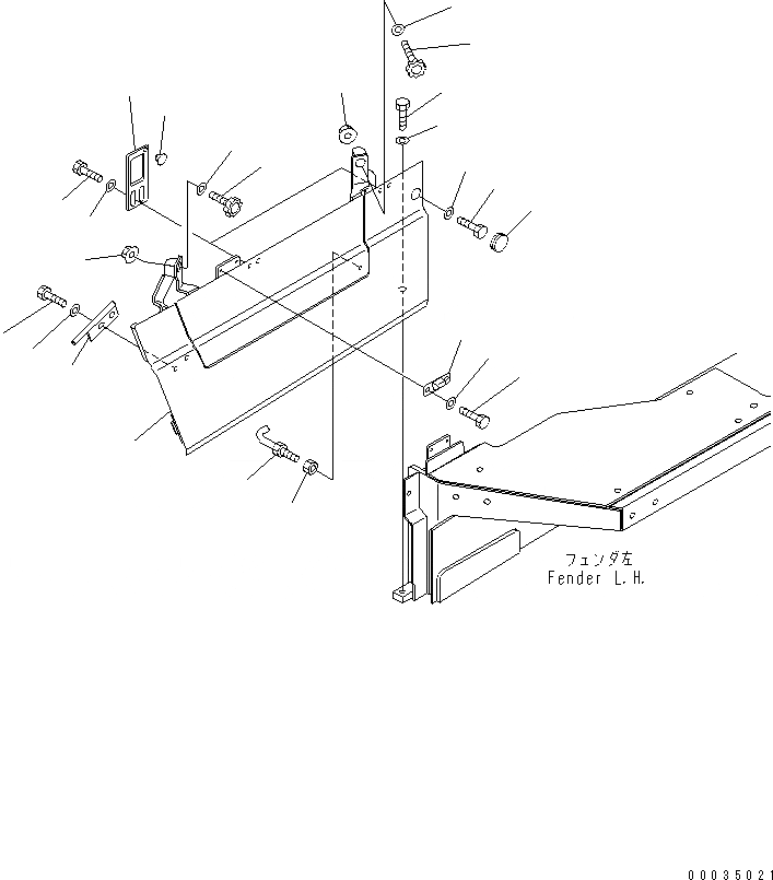
1
2
2
3
3
4
4
5
6
7
8
9
10
11
12
13
14
15
16
17
18
18
19
19
FIT
1:1
100%

Артикул

Название

Примечание

Количество

1

14X-54-32335

COVER

SN: 67030-UP

1шт.

1

14X-54-32334

COVER,L.H.

SN: 67001-67029

1шт.

2

195-54-68760

KNOB

SN: 67001-UP

2шт.

3

01640-21016

WASHER

SN: 67001-UP

2шт.

4

01594-01008

NUT

SN: 67001-UP

2шт.

5

14X-54-32471

GUIDE

SN: 67001-UP

1шт.

6

01010-81225

BOLT

SN: 67001-UP

2шт.

7

01643-31232

WASHER

SN: 67001-UP

2шт.

8

14X-54-32910

PLATE

SN: 67001-UP

2шт.

9

14X-54-12960

STOPPER

SN: 67001-UP

2шт.

10

01010-81225

BOLT

SN: 67001-UP

4шт.

11

01643-31232

WASHER

SN: 67001-UP

4шт.

12

205-54-53550

DOVE TAIL

SN: 67001-UP

1шт.

13

01010-80612

BOLT

SN: 67001-UP

2шт.

14

01643-30623

WASHER

SN: 67001-UP

2шт.

15

14X-54-32350

HOOK

SN: 67001-UP

1шт.

16

01580-00806

NUT

SN: 67001-UP

1шт.

17

09415-02512

CAP

SN: 67001-UP

2шт.

18

01010-81225

BOLT

SN: 67001-UP

4шт.

19

01643-31232

WASHER

SN: 67001-UP

4шт.

Выбрано товаров: 20