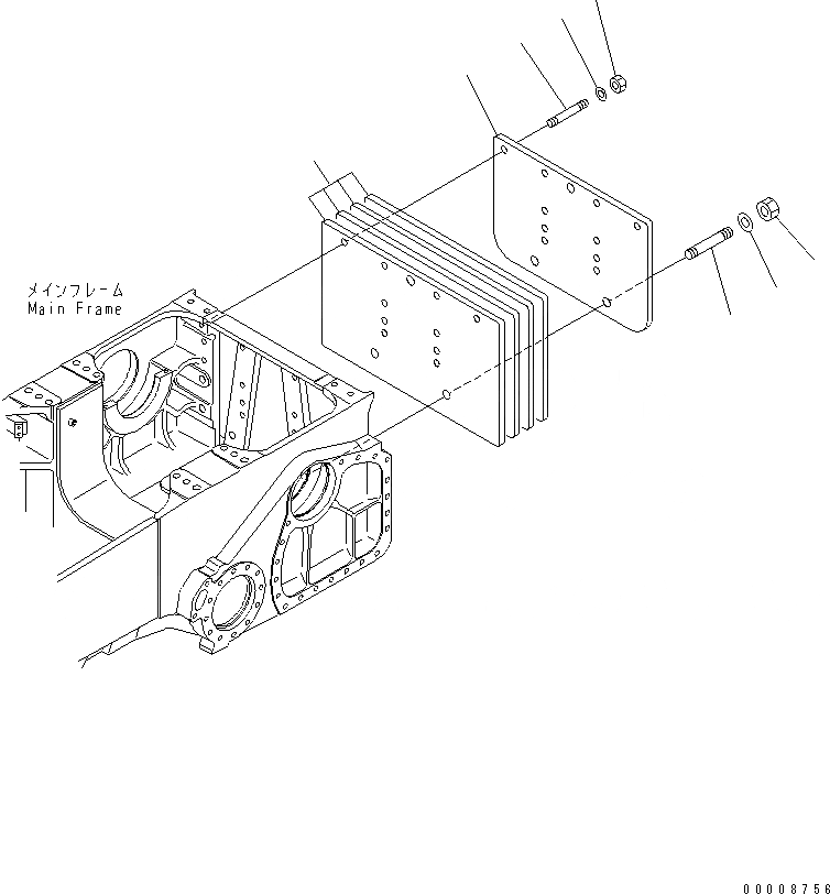
Запчасти Komatsu D65WX-15E0 ПРОТИВОВЕС РАБОЧЕЕ ОБОРУДОВАНИЕ

Схема запчастей Komatsu D65WX-15E0 - ПРОТИВОВЕС РАБОЧЕЕ ОБОРУДОВАНИЕ
1
2
3
4
5
6
7
8
FIT
1:1
100%

Артикул

Название

Примечание

Количество

1

14X-69-14110

WEIGHT

SN: 69001-UP

4шт.

2

14X-69-14120

WEIGHT

SN: 69001-UP

1шт.

3

145-Z23-4120

STUD

SN: 69001-UP

4шт.

4

01580-12419

NUT

SN: 69001-UP

4шт.

5

01643-32460

WASHER

SN: 69001-UP

4шт.

6

145-Z23-4140

STUD

SN: 69001-UP

2шт.

7

01580-13326

NUT

SN: 69001-UP

2шт.

8

01643-33380

WASHER

SN: 69001-UP

2шт.

Выбрано товаров: 8